Foto leveres af Google Street View og kan være upræcist:
Fri kontakt

Kontor til leje, København K, Arsenalet, Danneskiold-Samsøes Allé 16-20

Arsenalet, Danneskiold-Samsøes Allé 16-20, 1000-1499 København K
  • Kontor til leje
Kontor til leje, København K, Arsenalet, Danneskiold-Samsøes Allé 16-20
Arsenalet, Danneskiold-Samsøes Allé 16-20, 1000-1499 København K
  • Kontor til leje
Få mere info om lokalet

⚡ Se alle oplysninger om lejemålet og få direkte adgang til udlejerens kontaktoplysninger.

Kontor til leje, København K, Arsenalet, Danneskiold-Samsøes Allé 16-20

Byggeselskab Mogens de Linde
Lisa de Linde
tlf: 26 77 11 22
Se email-adressexxxxxxxxxxxxxxxx

PRO-UDLEJER

Læs mere

Læs om udlejer

Fakta

Rapportér fejl
  • 273944
  • Kontor
  • Butik
  • Showroom
  • 200 - -1 m2
  • Ikke angivet
  • 1.900 kr.

Kontor til leje i 1434 København K

Holmen er under forvandling. Hvor flådens håndværkere tidligere byggede skibe, producerede ammunition og testede ny teknologi, vokser der nu en helt ny bydel frem på Arsenaløen – den sydligste af Holmens øer. Midt i denne udvikling ligger "Arsenalet", som rummer attraktive erhvervslejemål i det eneste område på Holmen, der er godkendt til detailhandel.
Det gør Arsenalet til et kommende naturligt samlingspunkt for både lokale, besøgende og turister. Lejemålene egner sig blandt andet til butik eller kaffebar, men kan også bruges til kontor, træningsstudie eller showroom og giver virksomheder en enestående mulighed for at blive en del af et område i spændende udvikling.

Området

Arsenalet er beliggende i starten af Holmen, nærmere bestemt på Arsenaløen. Arsenalet er omgivet af charmerende kanaler og grønne omgivelser, og der er kun få minutters gang til Kongens Nytorv og Christianshavns Torv. Holmen er med sine mange historiske bygninger og maritime miljø en populær oase for kreative virksomheder. Tager du et kig til naboen "Kuglegården" finder du virksomheder som Ferm Living, Bolia, Munthe, Louis Poulsen og mange flere.

Et af Holmens mest karakteristiske bygningsværker er Kuglegården, tidligere kendt som Søarsenalet. Området har gennemgået en totalrenovering og er blevet udvidet med to nye bygninger – Trangravshusene og Proviantgården.

Holmen er de seneste årtier blevet et levende byområde med kultur, boliger og erhverv. Bl.a. kreative virksomheder i Kanonbådsskurene, Kunstakademiets skoler, Konservatoriet og Filmskolen. Det summer af liv omkring Papirøens markante tårne, og Operaens nye grønne Operapark er endnu en smuk attraktion i området.

Holmen er samtidig let tilgængelig. Via Inderhavnsbroen er der direkte forbindelse til Nyhavn, og ad Danneskiold-Samsøes Allé kan man hurtigt nå både Christianshavn og Kongens Nytorv, hvor metrostationerne ligger blot 10 minutters gang væk. Derudover kører busser direkte til døren, og der er mulighed for at leje parkeringspladser på området.

Ejendommen

Vi udbyder nu Værkstedshallen til leje. For lokale er bygningen kendt som "Base Camp" fra sin tid som restaurant og natklub i 1990'erne. Senest har bygningen været træningscenter og showroom.
Som alle andre bygninger på Holmen har Værkstedshallen en militær historie. Den blev opført i 1961 af Forsvarets Bygningstjeneste i solide materialer og har gennem årene været anvendt til en bred vifte af Forsvarets aktiviteter, herunder både kanonværksteder og kontorer. I slutningen af 1990’erne købte Byggeselskab Mogens de Linde ejendommen af Staten.

Arsenalet består i dag af flere sammenhængende bygninger, der alle undergår omfattende renovering i disse år. Iflg lokalplanen er der bl.a. mulighed for at etablere butikker og andre publikumsorienterede aktiviteter. Man får Netto til nabo og Københavns Kommune åbner et Seniorhus på Arsenalet i 2026.
I den pågående renovering udbygges Værkstedshallen og der tilføjes to etager med 48 boliger ovenpå den eksisterende bygning.

Kælder og stueetagen får et rustikt betongulv, imens der på 1. salen lægges massive trægulve. Vi bevarer ejendommens rå, industrielle stil så som synlige betonsøjler, traverskranen i stueetagen, synlig insitustøbt beton m.m.

Lejemålet

Ejendommen henvender sig til virksomheder, der ønsker en enestående placering midt i København i en ejendom, der sjældent udbydes. Lejemålene er velegnede til butik/ kaffebar/ træningsstudie/kontor eller lign.

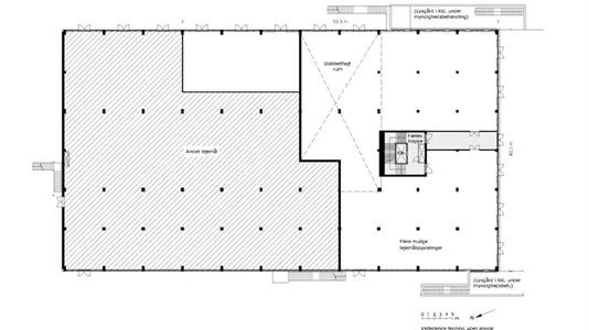
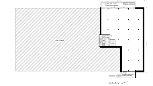
Lejemålene fordeler sig på kælder, stue og 1. sal. Kælderen har en loftshøjde på 3,71- 3,04 meter. I stueplan er der flere steder dobbelt lofthøjde, så man kommer op på imponerende 7,81 meter de højeste steder, hvilket giver et lyst og luftigt miljø. For det resterende stueplan bliver loftshøjden på 4,12 - 4,19 meter. 1. salen får en lofthøjde på 3,36 meter. Kælderetagen egner sig særligt godt til fx et træningsstudie. I alle lejemålene er der desuden mulighed for køling via Hofor Fjernkøl.

Lejemål:
Kælder: 950 m²
Stue: 1.164 m² eller mulighed for enheder fra 200 m²
1. sal: 1.522 m² eller opdeling i 517 m², 615 m² eller 390 m²

Prisniveau:
Kælder: 1.900 kr/m² pr. år + moms
Stue: 3.500 kr/m² pr. år + moms
1. sal: 2.200 kr/m² pr. år + moms

Nyt liv i Forsvarets gamle rammer

I slutningen af 1600-tallet blev flådens base flyttet fra Bremerholm til Christiansholm, og anlæggelsen af Arsenaløen blev påbegyndt. Det var den første af flere kunstige øer, som over de næste 300 år blev til det, vi i dag kender som Holmen.

"Arsenalet" på Holmen er en tidligere militærbygning opført i 1961 af Forsvarets Bygningstjeneste. Ejendommen er bygget i solide materialer og blev oprindeligt brugt til en bred vifte af forsvarets aktiviteter – herunder værksteder og kontorer. I slut 1990erne købte Byggeselskab Mogens de Linde Base Camp af staten, da flere af bygningerne på det dengang lukkede Holmen kom til salg. For lokale er bygningen kendt som "Base Camp" fra sin tid som restaurant og natklub i 1990'erne. Senest har bygningen været træningscenter.

Området med Arsenalet, Arsenalsøen, Kuglegården, Dokøen, Grønlandske Plads og Papirøen har i de seneste år og stadig været igennem en større omdannelse og infrastrukturen er forbedret. Et af de markante historiske bygningsværker på Holmen, er Kuglegården – tidligere kendt som Søarsenalet. Kuglegården har gennemgået en massiv renovering, der er tilføjet 2 nye bygninger til området ”Transgravshusene” og ”Proviantgården” – begge føjer sig naturligt ind i Holmens historiske arkitektur og maritime atmosfære. De kommende år står Arsenalet foran en ny transformation. Med respekt for historien og i tråd med visionerne for Kuglegården renoverer og udbygger vi ejendommen, så den bliver et naturligt supplement til områdets levende byrum. Holmen, engang et lukket militærområde, er i dag et dynamisk kvarter med boliger, erhverv, kreative uddannelsesinstitutioner og designvirksomheder. Et sted, hvor historie og nutid mødes – og hvor fremtiden skabes.

Arsenalet bevares i sin oprindelige struktur, men får et helt nyt udtryk. Vi tilføjer kælder, bygger to ekstra etager med moderne boliger og etablerer et elevatortårn, der sikrer tilgængelighed på tværs af bygningen. Samtidig energioptimeres ejendommen, så den lever op til nutidens krav til bæredygtighed og komfort.Når ejendommen står færdigrenoveret, er der plads til ældreaktivitetscenter, dagligvare, træning, butikker, kaffebar og boliger på toppen af det hele.

Information og data

Dette kontorlejemål, som alternativt kan anvendes til Butik eller Showroom, ligger i København K. København K har postnummeret 1434, og ligger i kommunen København, som ligger i København.

Lignende lokaler

Ofte stillede spørgsmål

Statistik over udviklingen i ledige kontorlokaler til leje i København K over den sidste måned

Herunder ser du udviklingen i udbuddet og udlejningen af ledige kontorlokaler til leje i København K over den sidste måned. I den første kolonne ser du datoen. I den anden kolonne ser du det samlede antal kontorlokaler til leje i København K på datoen. I den tredje kolonne ser du antallet af nye kontorlokaler i København K der er udbudt til leje på datoen. I den fjerde kolonne ser du antallet af kontorlokaler i København K der er udlejet på datoen. Se også samlet statistik over alle udbudte kontorlokaler i København K over tid, samlet statistik over nye kontorlokaler i København K over tid, samlet statistik over udlejede kontorlokaler i København K over tid.

Dato Alle kontorlokaler til leje Nye kontorlokaler til leje Udlejede kontorlokaler
23. januar 2026 407 1 1
22. januar 2026 407 3 0
21. januar 2026 404 4 0
20. januar 2026 400 284 286
19. januar 2026 402 300 0
18. januar 2026 102 0 0
17. januar 2026 102 0 0
16. januar 2026 102 2 3
15. januar 2026 103 2 2
14. januar 2026 103 2 0
13. januar 2026 101 1 1
12. januar 2026 101 0 298
11. januar 2026 399 0 0
10. januar 2026 399 2 1
9. januar 2026 398 3 5
8. januar 2026 400 2 1
7. januar 2026 399 2 2
6. januar 2026 399 1 1
5. januar 2026 399 0 6
4. januar 2026 405 0 0
3. januar 2026 405 0 2
2. januar 2026 407 0 2
1. januar 2026 409 5 1
31. december 2025 405 0 0
30. december 2025 405 0 1
29. december 2025 406 0 0
28. december 2025 406 0 0
27. december 2025 406 0 0
26. december 2025 406 0 0
25. december 2025 406 0 0
24. december 2025 406 0 0

Statistik over udbuddet af kontorlokaler til leje i København K

I nedenstående tabel ser du en række data om udbuddet af kontorlokaler til leje i København K.Se også samlet statistik over alle udbudte kontorlokaler i København K over tid, samlet statistik over nye kontorlokaler i København K over tid, samlet statistik over udlejede kontorlokaler i København K over tid

Kontorlokaler
Antal ledige lokaler 407
Antal nye lokaler siden i går 1
Antal udlejede lokaler siden i går 1
Ledige m2 i alt 212.071
Gennemsnitlig pris per m2 per år uden drift 2.088
Højeste m2-pris 9.176
Laveste m2-pris 1