Lager til leje, København K, Quintus Bastion, Krudtløbsvej 14
Quintus Bastion, Krudtløbsvej 14, 1000-1499 København K- Lager til leje
- 846 m2

- Lager til leje
- 846 m2
Lager til leje, København K, Quintus Bastion, Krudtløbsvej 14
Quintus Bastion, Krudtløbsvej, Lager, 1439 København K
Området
Quintus Bastion er en del af Københavns befæstning og daterer sig tilbage til 1600-tallet. Sammen med Nyholm er Quintus Bastion den nordligste del af Holmens fæstningsværker. Omkranset af vand og husbåde byder Quintus Bastion på hyggelig maritim Holmen stemning i en klasse helt for sig.
Quintus Bastion er fredet og omfattet af museumsloven, hvilket betyder, at det kun er eksisterende bygninger, der kan benyttes til erhverv og bolig. Mod syd for Bastionen findes det fredede voldområde, der ligeledes er bevaringsværdig, mod Nord ligger Refshaleøen.
Quintus Bastion tilgås med bil via Christianshavn eller Kløvermarken. Christianshavn og Holmen er solidt forbundet via cykel-/gangbroer, således Kongens Nytorv kan nås på blot 10 minutter på cykel. Desuden har Københavns Kommune besluttet at tilføje en ny cykel-/gangbro mellem Refshaleøen og Toldboden, dette projekteres i denne tid. I gå- og cykelafstand findes endvidere både Christianshavns Metro station, havnebussen og busforbindelse 2A.
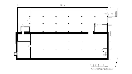
Lejemålet
Kælderetagen af Forsvarets tidligere ejendom er indrettet til kælder. Mekanisk lift direkte til indgangsporten gør lageret yderst anvendeligt. Parkering kan tillejes i lejemålets nærhed.
Lageret har beton vægge, lofter, gulv, er indrettet med belysning, radiatorer og aflåselige zoner og rum. Der er ståhøjde i lejemålet, dog med nogle få lavere buer i konstruktionen.
Information og data
Dette lagerlejemål, ligger i København K. København K har postnummeret 1439, og ligger i kommunen København, som ligger i København. Lokalet er i alt 846 m2.
Lignende lokaler
-
39 m2 kontor til leje i 1472 København K
- 8.500 kr. per måned
- 2.615 kr/m2/år
-
130 m2 lager til leje i 1208 København K
- 7.000 kr. per måned
- 646 kr/m2/år
-
107 m2 kontor til leje i 1353 København K
- 10.994 kr. per måned
- 1.233 kr/m2/år
-
98 m2 lager til leje i 1151 København K
- 10.000 kr. per måned
- 1.224 kr/m2/år
-
87 m2 lager til leje i 1159 København K
- 2.545 kr. per måned
- 351,03 kr/m2/år
Ofte stillede spørgsmål
Statistik over udviklingen i ledige lagerlokaler til leje i København K over den sidste måned
Herunder ser du udviklingen i udbuddet og udlejningen af ledige lagerlokaler til leje i København K over den sidste måned. I den første kolonne ser du datoen. I den anden kolonne ser du det samlede antal lagerlokaler til leje i København K på datoen. I den tredje kolonne ser du antallet af nye lagerlokaler i København K der er udbudt til leje på datoen. I den fjerde kolonne ser du antallet af lagerlokaler i København K der er udlejet på datoen. Se også samlet statistik over alle udbudte lagerlokaler i København K over tid, samlet statistik over nye lagerlokaler i København K over tid, samlet statistik over udlejede lagerlokaler i København K over tid.
Dato | Alle lagerlokaler til leje | Nye lagerlokaler til leje | Udlejede lagerlokaler |
---|---|---|---|
21. oktober 2025 | 19 | 0 | 0 |
20. oktober 2025 | 19 | 0 | 0 |
19. oktober 2025 | 19 | 0 | 0 |
18. oktober 2025 | 19 | 2 | 1 |
17. oktober 2025 | 18 | 1 | 0 |
16. oktober 2025 | 17 | 0 | 0 |
15. oktober 2025 | 17 | 0 | 0 |
14. oktober 2025 | 17 | 1 | 0 |
13. oktober 2025 | 16 | 0 | 0 |
12. oktober 2025 | 16 | 0 | 0 |
11. oktober 2025 | 16 | 1 | 0 |
10. oktober 2025 | 15 | 0 | 0 |
9. oktober 2025 | 15 | 0 | 0 |
8. oktober 2025 | 15 | 2 | 1 |
7. oktober 2025 | 14 | 0 | 0 |
6. oktober 2025 | 14 | 0 | 1 |
5. oktober 2025 | 15 | 0 | 0 |
4. oktober 2025 | 15 | 0 | 0 |
3. oktober 2025 | 15 | 0 | 0 |
2. oktober 2025 | 15 | 0 | 0 |
1. oktober 2025 | 15 | 0 | 0 |
30. september 2025 | 15 | 0 | 0 |
29. september 2025 | 15 | 0 | 0 |
28. september 2025 | 15 | 0 | 0 |
27. september 2025 | 15 | 0 | 1 |
26. september 2025 | 16 | 0 | 1 |
25. september 2025 | 17 | 0 | 0 |
24. september 2025 | 17 | 0 | 0 |
23. september 2025 | 17 | 5 | 5 |
22. september 2025 | 17 | 5 | 0 |
21. september 2025 | 12 | 0 | 0 |
Statistik over udbuddet af lagerlokaler til leje i København K
I nedenstående tabel ser du en række data om udbuddet af lagerlokaler til leje i København K.Se også samlet statistik over alle udbudte lagerlokaler i København K over tid, samlet statistik over nye lagerlokaler i København K over tid, samlet statistik over udlejede lagerlokaler i København K over tid
Lagerlokaler | |
---|---|
Antal ledige lokaler | 18 |
Antal nye lokaler siden i går | 0 |
Antal udlejede lokaler siden i går | 0 |
Ledige m2 i alt | 11.889 |
Gennemsnitlig pris per m2 per år uden drift | 1.059 |
Højeste m2-pris | 2.615 |
Laveste m2-pris | 351,03 |