Lager til leje, Kolding, Vejlevej - 268m2, 155.436 kr.
- 268 m2
- 12.953 kr. per måned
⚡ Se alle oplysninger om lejemålet og få direkte adgang til udlejerens kontaktoplysninger.
Lager til leje, Kolding, Vejlevej - 268m2, 155.436 kr.
- 268 m2
- 12.953 kr. per måned
Logistik/kontor/produktions-lejemål, direkte til E20/E45 afkørsel Bramdrupdam
Funktionelt lager og kontor til leje tæt på motorvejen i Kolding
Central placering med stærke logistikforhold
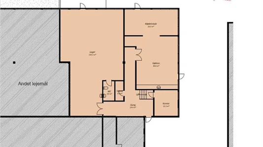
Du får 268 m² fordelt på lager og kontor. Lokalerne er beliggende ved motorvejen E45/E20. Du får nem adgang til transportnettet og korte forbindelser til både Trekantområdet, Fyn og resten af Jylland – en ideel base for virksomheder, der prioriterer effektiv logistik og hurtige leverancer.
Indflytningsklart lager med lyse og funktionelle rammer
Lageret fremstår i pæn stand, som giver et behageligt og produktivt arbejdsmiljø. Rummet egner sig både til opbevaring, distribution og lettere produktion. Adgangsforhold via bred dobbelt dør til aflæsningszone, som giver let adgang til af- og pålæsning, og en frihøjde på 2,8–3 meter gør det nemt at udnytte pladsen optimalt.
Udearealer og let adgang
Der fælles p-areal til brug for medarbejderne.
Praktiske faciliteter til hverdagen
Ud over lageret får du et rummeligt personalerum, der fungerer perfekt til pauser eller møder, samt moderne toiletforhold. Alt er indrettet med fokus på en funktionel og behagelig arbejdsdag – for både ledelse og medarbejdere.
Del af et aktivt erhvervsmiljø
Ejendommen huser flere etablerede virksomheder, herunder Enemark & Sabroe ApS, IBOB A/S, Larsen Fine Food, Verisure A/S, Hydroshark, Tømrermester Møller og en dyrlægepraksis. Det skaber et professionelt og aktivt erhvervsmiljø med gode muligheder for netværk og samarbejde.
Kontakt en af Copenhagen Real Estate medarbejder for en fremvisning eller yderligere information!
Depositum: 38859 kr.
Information og data
Dette lagerlejemål, ligger i Kolding. Kolding har postnummeret 6000, og ligger i kommunen Kolding, som ligger i Region Sydjylland. Lokalet er i alt 268 m2. Du kan leje dette lagerlokale for 155.436 kr. per år.
Lignende lokaler
| 1 yr |
1.841 m2 lager til leje i 6000 Kolding, Kokbjerg
1.841 m2
|
69.038 kr. per måned
|
Åbn |
| 3 mo |
375 m2 lager til leje i 6000 Kolding, Dieselvej
375 m2
|
17.500 kr. per måned
|
Åbn |
| 2 mo |
3.603 m2 lager til leje i 6000 Kolding, Ambolten
3.603 m2
|
125.000 kr. per måned
|
Åbn |
| 1 mo |
224 m2 kontor til leje i 6000 Kolding, Nr Bjertvej
224 m2
|
9.583 kr. per måned
|
Åbn |
| 27 d |
250 m2 butik til leje i 6000 Kolding, Carl Plougs Vej
250 m2
|
8.400 kr. per måned
|
Åbn |
| 3 yr |
363 m2 kontor til leje i 6000 Kolding, Fynsvej
363 m2
|
19.506 kr. per måned
|
Åbn |
| 9 mo |
Klinik til leje i 6000 Kolding, Olaf Ryes Gade
N/A
|
5.850 kr. per måned
|
Åbn |
| 6 mo |
547 m2 butik til leje i 6000 Kolding, Vejlevej
547 m2
|
38.746 kr. per måned
|
Åbn |
| 3 mo |
Klinik til leje i 6000 Kolding
N/A
|
6.650 kr. per måned
|
Åbn |
Ofte stillede spørgsmål
Statistik over udviklingen i ledige lagerlokaler til leje i Kolding over den sidste måned
Herunder ser du udviklingen i udbuddet og udlejningen af ledige lagerlokaler til leje i Kolding over den sidste måned. I den første kolonne ser du datoen. I den anden kolonne ser du det samlede antal lagerlokaler til leje i Kolding på datoen. I den tredje kolonne ser du antallet af nye lagerlokaler i Kolding der er udbudt til leje på datoen. I den fjerde kolonne ser du antallet af lagerlokaler i Kolding der er udlejet på datoen. Se også samlet statistik over alle udbudte lagerlokaler i Kolding over tid, samlet statistik over nye lagerlokaler i Kolding over tid, samlet statistik over udlejede lagerlokaler i Kolding over tid.
| Dato | Alle lagerlokaler til leje | Nye lagerlokaler til leje | Udlejede lagerlokaler |
|---|---|---|---|
| 4. april 2026 | 67 | 0 | 0 |
| 3. april 2026 | 67 | 0 | 0 |
| 2. april 2026 | 67 | 1 | 0 |
| 1. april 2026 | 66 | 0 | 0 |
| 31. marts 2026 | 66 | 0 | 2 |
| 30. marts 2026 | 68 | 0 | 0 |
| 29. marts 2026 | 68 | 0 | 0 |
| 28. marts 2026 | 68 | 0 | 0 |
| 27. marts 2026 | 68 | 43 | 0 |
| 26. marts 2026 | 25 | 0 | 42 |
| 25. marts 2026 | 67 | 0 | 2 |
| 24. marts 2026 | 69 | 0 | 0 |
| 23. marts 2026 | 69 | 0 | 0 |
| 22. marts 2026 | 69 | 0 | 0 |
| 21. marts 2026 | 69 | 0 | 0 |
| 20. marts 2026 | 69 | 0 | 0 |
| 19. marts 2026 | 69 | 0 | 0 |
| 18. marts 2026 | 69 | 0 | 1 |
| 17. marts 2026 | 70 | 0 | 0 |
| 16. marts 2026 | 70 | 0 | 0 |
| 15. marts 2026 | 70 | 0 | 0 |
| 14. marts 2026 | 70 | 0 | 0 |
| 13. marts 2026 | 70 | 0 | 0 |
| 12. marts 2026 | 70 | 0 | 0 |
| 11. marts 2026 | 70 | 0 | 0 |
| 10. marts 2026 | 70 | 2 | 1 |
| 9. marts 2026 | 69 | 0 | 1 |
| 8. marts 2026 | 70 | 0 | 0 |
| 7. marts 2026 | 70 | 0 | 0 |
| 6. marts 2026 | 70 | 0 | 1 |
| 5. marts 2026 | 71 | 0 | 0 |
Statistik over udbuddet af lagerlokaler til leje i Kolding
I nedenstående tabel ser du en række data om udbuddet af lagerlokaler til leje i Kolding.Se også samlet statistik over alle udbudte lagerlokaler i Kolding over tid, samlet statistik over nye lagerlokaler i Kolding over tid, samlet statistik over udlejede lagerlokaler i Kolding over tid
| Lagerlokaler | |
|---|---|
| Antal ledige lokaler | 67 |
| Antal nye lokaler siden i går | 0 |
| Antal udlejede lokaler siden i går | 0 |
| Ledige m2 i alt | 338.996 |
| Gennemsnitlig pris per m2 per år uden drift | 859 |
| Højeste m2-pris | 12.000 |
| Laveste m2-pris | 240 |