Kontor til leje, Kolding, Vej ikke angivet
Vej ikke angivet, 6000 - Kolding- Kontor til leje
- 360 m2
- 30.000 kr. per måned
- Kontor til leje
- 360 m2
- 30.000 kr. per måned
⚡ Se alle oplysninger om lejemålet og få direkte adgang til udlejerens kontaktoplysninger.
Kontor til leje, Kolding, Vej ikke angivet
Lyst og indbydende kontor med nordisk æstetisk og unikke detaljer
Lyst og indbydende kontor med nordisk æstetik og unikke detaljer
Unik atmosfære: Lyse lokaler med hvidmalede bjælker og et fantastisk naturligt lysindfald.
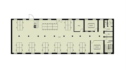
Gennemtænkt indretning: Kombination af stort åben kontorlandskab og eksklusive mødelokaler med glaspartier.
Socialt hjerte: Stort, moderne samtalekøkken med plads til fælles frokost og uformelle pauser.
Funktionalitet: Indeholder to toiletter, depotrum og gode garderobefaciliteter.
Ekstra kvadratmeter: Mulighed for at leje separate kælderlokaler til lager eller arkiv under særskilte vilkår.
På 1. sal i Olaf Ryes Gade 7N ligger dette erhvervslejemål, der skiller sig ud fra mængden. Lokalerne forener det rå, industrielle udtryk med en lys og moderne nordisk finish. De karakteristiske hvidmalede bjælker i loftet og de elegante glaspartier skaber et arbejdsmiljø, der føles både rummeligt og inspirerende.
Det store samtalekøkken fungerer som lejemålets naturlige samlingspunkt, hvor der er rig plads til både kaffepauser og det sociale fællesskab. Plantegningen sikrer et naturligt flow mellem det åbne kontormiljø og de separate møderum, hvilket skaber optimale betingelser for både samarbejde og fordybelse.
Anvendelse og Fleksibilitet: Lejemålet er ideelt til det kreative bureau, den rådgivende virksomhed eller tegnestuen, der søger en base med karakter centralt i Kolding. Skulle jeres virksomhed have behov for ekstra lagerkapacitet, er der mulighed for at tegne en separat lejekontrakt på de tilhørende kælderlokaler.
Vil du opleve mulighederne? Kontakt os for en fremvisning af dette unikke lejemål i Kolding. Vi glæder os til at vise jer rammerne for jeres næste arbejdsliv.
Parkering: Der er mulighed for at tilkøbe parkeringslicenser til parkering på adressen. Derudover er der 2 timers gratis parkering for gæster på adressen samt 24 timers gratis parkering på Thorbjergvej.
Lejemålet overtages umøbleret, hvilket giver jer den perfekte hvide profil til at implementere jeres egen visuelle identitet og indretning i de lyse rammer.
Depositum: null kr.
Information og data
Dette kontorlejemål, ligger i Kolding. Kolding har postnummeret 6000, og ligger i kommunen Kolding, som ligger i Region Sydjylland. Lokalet er i alt 360 m2. Du kan leje dette kontorlokale for 360.000 kr. per år.
Lignende lokaler
-
188 m2 butik til leje i 6000 Kolding, Buen
Fri kontakt- 20.000 kr. per måned
- 1.276 kr/m2/år
-
60 m2 klinik til leje i 6000 Kolding, Haderslevvej
Fri kontakt- 5.650 kr. per måned
- 1.130 kr/m2/år
-
268 m2 lager til leje i 6000 Kolding, Vejlevej
Fri kontakt- 12.953 kr. per måned
- 579 kr/m2/år
Ofte stillede spørgsmål
Statistik over udviklingen i ledige kontorlokaler til leje i Kolding over den sidste måned
Herunder ser du udviklingen i udbuddet og udlejningen af ledige kontorlokaler til leje i Kolding over den sidste måned. I den første kolonne ser du datoen. I den anden kolonne ser du det samlede antal kontorlokaler til leje i Kolding på datoen. I den tredje kolonne ser du antallet af nye kontorlokaler i Kolding der er udbudt til leje på datoen. I den fjerde kolonne ser du antallet af kontorlokaler i Kolding der er udlejet på datoen. Se også samlet statistik over alle udbudte kontorlokaler i Kolding over tid, samlet statistik over nye kontorlokaler i Kolding over tid, samlet statistik over udlejede kontorlokaler i Kolding over tid.
| Dato | Alle kontorlokaler til leje | Nye kontorlokaler til leje | Udlejede kontorlokaler |
|---|---|---|---|
| 18. december 2025 | 125 | 0 | 11 |
| 17. december 2025 | 136 | 0 | 0 |
| 16. december 2025 | 136 | 4 | 0 |
| 15. december 2025 | 132 | 0 | 5 |
| 14. december 2025 | 137 | 0 | 0 |
| 13. december 2025 | 137 | 0 | 0 |
| 12. december 2025 | 137 | 0 | 0 |
| 11. december 2025 | 137 | 1 | 1 |
| 10. december 2025 | 137 | 1 | 0 |
| 9. december 2025 | 136 | 0 | 0 |
| 8. december 2025 | 136 | 0 | 1 |
| 7. december 2025 | 137 | 0 | 2 |
| 6. december 2025 | 139 | 0 | 0 |
| 5. december 2025 | 139 | 2 | 0 |
| 4. december 2025 | 137 | 0 | 0 |
| 3. december 2025 | 137 | 6 | 0 |
| 2. december 2025 | 131 | 0 | 7 |
| 1. december 2025 | 138 | 1 | 1 |
| 30. november 2025 | 138 | 1 | 0 |
| 29. november 2025 | 137 | 1 | 1 |
| 28. november 2025 | 137 | 7 | 7 |
| 27. november 2025 | 137 | 7 | 0 |
| 26. november 2025 | 130 | 0 | 0 |
| 25. november 2025 | 130 | 2 | 1 |
| 24. november 2025 | 129 | 0 | 0 |
| 23. november 2025 | 129 | 0 | 0 |
| 22. november 2025 | 129 | 0 | 0 |
| 21. november 2025 | 129 | 0 | 8 |
| 20. november 2025 | 137 | 0 | 1 |
| 19. november 2025 | 138 | 0 | 0 |
| 18. november 2025 | 138 | 1 | 0 |
Statistik over udbuddet af kontorlokaler til leje i Kolding
I nedenstående tabel ser du en række data om udbuddet af kontorlokaler til leje i Kolding.Se også samlet statistik over alle udbudte kontorlokaler i Kolding over tid, samlet statistik over nye kontorlokaler i Kolding over tid, samlet statistik over udlejede kontorlokaler i Kolding over tid
| Kontorlokaler | |
|---|---|
| Antal ledige lokaler | 136 |
| Antal nye lokaler siden i går | 0 |
| Antal udlejede lokaler siden i går | 11 |
| Ledige m2 i alt | 88.424 |
| Gennemsnitlig pris per m2 per år uden drift | 1.141 |
| Højeste m2-pris | 13.821 |
| Laveste m2-pris | 240 |