Kontor til leje, Ballerup, Vej ikke angivet
Vej ikke angivet, 2750 - Ballerup- Kontor til leje
- 1.066 m2
- 89.366 kr. per måned
- Kontor til leje
- 1.066 m2
- 89.366 kr. per måned
⚡ Se alle oplysninger om lejemålet og få direkte adgang til udlejerens kontaktoplysninger.
Kontor til leje, Ballerup, Vej ikke angivet
Stort og moderne kontorlejemål på op til 1.066 m² med attraktiv beliggenhed i Ballerup
Nyistandsat lejemål i velbeliggende ejendom
- Muligt at leje op til 1.066 m² kontor
- Moderne indretning med fleksible arbejdspladser
- Lejemålene er istandsat i smagfuld stil
- Mulighed for leje af p-pladser foran ejendommen
- Tæt på Ring 4 og E45
Ejendommen, der for nyligt er istandsat, er beliggende i Ballerup
i et attraktivt erhvervsområde. Området har god infrastruktur og
grønne arealer tæt på. Hvis man er i bil kommer man hurtigt til Tempovej fra enten Ring 4 eller E45 og kommer man med S-tog er man blot en gåtur fra lejemålet. Ejendommen er to etager høj og en del af en større lagerejendom.
Ved første møde med lejemålet bliver man hurtigt klar over at der tale om lejemål, som er stilfuldt indrettet og i god kvalitet.
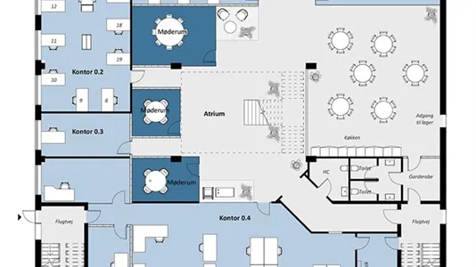
Ejendommen har et fint atrie, der med sit ovenlys byder gæster og medarbejdere velkommen. Det er muligt at leje i alt 1.066 m². I stueplan er der nyt køkken med tilhørende spiseområde, flere større kontorer og enkelte mødelokaler.
Stueplan har en kombination af nye tæppefliser og LVT-gulve.
På 1. sal er der også nyt køkken i samme stil som i stueplan, samt forskellige størrelser kontorer. Trægulvene er bevaret og har fået en slibning og
en behandling, så de i dag står som nye. Udenfor ejendommen er der tilhørende parkeringspladser. Det er som lejer muligt at koble sig på frokostordning
der vil blive leveret fra en af ejendommens øvrige lejere. På den måde slipper man helt for selv at skulle afsætte tid til dette og man kan blot nyde sin frokostpause.
Depositum: null kr.
Information og data
Dette kontorlejemål, ligger i Ballerup. Ballerup har postnummeret 2750, og ligger i kommunen Ballerup, som ligger i Storkøbenhavn. Lokalet er i alt 1066 m2. Du kan leje dette kontorlokale for 1.072.392 kr. per år.
Lignende lokaler
-
384 m2 lager til leje i 2750 Ballerup, Telegrafvej
Fri kontakt- 19.200 kr. per måned
- 600 kr/m2/år
-
1700 m2 lager til leje i 2750 Ballerup, Vej ikke angivet
Fri kontakt- 138.125 kr. per måned
- 975 kr/m2/år
Ofte stillede spørgsmål
Statistik over udviklingen i ledige kontorlokaler til leje i Ballerup over den sidste måned
Herunder ser du udviklingen i udbuddet og udlejningen af ledige kontorlokaler til leje i Ballerup over den sidste måned. I den første kolonne ser du datoen. I den anden kolonne ser du det samlede antal kontorlokaler til leje i Ballerup på datoen. I den tredje kolonne ser du antallet af nye kontorlokaler i Ballerup der er udbudt til leje på datoen. I den fjerde kolonne ser du antallet af kontorlokaler i Ballerup der er udlejet på datoen. Se også samlet statistik over alle udbudte kontorlokaler i Ballerup over tid, samlet statistik over nye kontorlokaler i Ballerup over tid, samlet statistik over udlejede kontorlokaler i Ballerup over tid.
| Dato | Alle kontorlokaler til leje | Nye kontorlokaler til leje | Udlejede kontorlokaler |
|---|---|---|---|
| 10. november 2025 | 77 | 0 | 0 |
| 9. november 2025 | 77 | 0 | 0 |
| 8. november 2025 | 77 | 1 | 1 |
| 7. november 2025 | 77 | 1 | 0 |
| 6. november 2025 | 76 | 3 | 3 |
| 5. november 2025 | 76 | 1 | 0 |
| 4. november 2025 | 75 | 0 | 0 |
| 3. november 2025 | 75 | 0 | 0 |
| 2. november 2025 | 75 | 0 | 0 |
| 1. november 2025 | 75 | 0 | 0 |
| 31. oktober 2025 | 75 | 0 | 4 |
| 30. oktober 2025 | 79 | 0 | 0 |
| 29. oktober 2025 | 79 | 0 | 1 |
| 28. oktober 2025 | 80 | 1 | 0 |
| 27. oktober 2025 | 79 | 0 | 1 |
| 26. oktober 2025 | 80 | 0 | 0 |
| 25. oktober 2025 | 80 | 0 | 0 |
| 24. oktober 2025 | 80 | 5 | 0 |
| 23. oktober 2025 | 75 | 4 | 8 |
| 22. oktober 2025 | 79 | 4 | 0 |
| 21. oktober 2025 | 75 | 2 | 1 |
| 20. oktober 2025 | 74 | 6 | 2 |
| 19. oktober 2025 | 70 | 2 | 0 |
| 18. oktober 2025 | 68 | 0 | 4 |
| 17. oktober 2025 | 72 | 4 | 1 |
| 16. oktober 2025 | 69 | 2 | 0 |
| 15. oktober 2025 | 67 | 0 | 0 |
| 14. oktober 2025 | 67 | 1 | 0 |
| 13. oktober 2025 | 66 | 0 | 1 |
| 12. oktober 2025 | 67 | 0 | 0 |
| 11. oktober 2025 | 67 | 1 | 0 |
Statistik over udbuddet af kontorlokaler til leje i Ballerup
I nedenstående tabel ser du en række data om udbuddet af kontorlokaler til leje i Ballerup.Se også samlet statistik over alle udbudte kontorlokaler i Ballerup over tid, samlet statistik over nye kontorlokaler i Ballerup over tid, samlet statistik over udlejede kontorlokaler i Ballerup over tid
| Kontorlokaler | |
|---|---|
| Antal ledige lokaler | 77 |
| Antal nye lokaler siden i går | 0 |
| Antal udlejede lokaler siden i går | 0 |
| Ledige m2 i alt | 78.903 |
| Gennemsnitlig pris per m2 per år uden drift | 888 |
| Højeste m2-pris | 2.400 |
| Laveste m2-pris | 4,31 |