Kontorfællesskab til leje, Ballerup, Tempovej
Tempovej, 2750 - Ballerup- Kontorfællesskab til leje
- Kontorfællesskab til leje
⚡ Se alle oplysninger om lejemålet og få direkte adgang til udlejerens kontaktoplysninger.
Kontorfællesskab til leje, Ballerup, Tempovej
Fakta
Rapportér fejl- 261418
- Kontorfællesskab
- Ikke angivet
⚡ Se alle oplysninger om lejemålet og få direkte adgang til udlejerens kontaktoplysninger.
Ingen binding, kontor til 12.000 kr.
Lige nu giver vi dig første måneds husleje uden beregning, når du lejer dette lokale. En perfekt mulighed for at komme godt i gang uden ekstra omkostninger fra start.
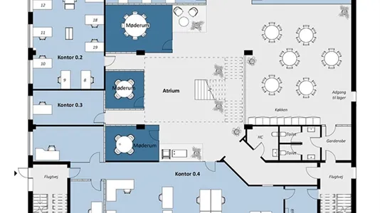
For kun 2.000 kr. pr. person kan du leje dit eget private kontorlokale på Tempovej 39 med plads til 6 personer. Det er det perfekte valg for jer, der søger en attraktiv og budgetvenlig løsning.
Her får du også:
All inclusive: Copenhagen Real Estatetror på at gøre dit arbejdsliv enklere. Kontorfællesskabet, EasyOffice', faste månedlige leje inkluderer el, vand, varme, pålideligt internet og regelmæssig rengøring af fællesarealerne, så du kan fokusere på det, der betyder mest – dit arbejde.
Central beliggenhed: Dette kontorfællesskab ligger centralt i Ballerup, og tilbyder let adgang til shopping og indkøbsmuligheder, samt transport. Området har gode parkeringsfaciliteter, og Malmparken Station, blot 5 minutters gang væk, giver nem adgang til S-tog, regionaltog og busser til København og resten af landet.
Moderne kontorfaciliteter: I Ballerup har vi kontorer fra 1-20 arbejdspladser. Vores priser inkluderer eget aflåselige, moderne kontor, samt adgang til mødelokaler og fællesarealer. Mødelokalerne kan bookes online via portal. I mødelokalerne er der både whiteboard og flatscreen. Herudover får du også adgang til mødelokalerne på vores øvrige lokationer.
Fleksible lejekontrakter: Vi tilbyder fleksible lejekontrakter, hvor du selv bestemmer tidshorisonten. Du kan tilpasse lejeperioden efter dine behov uden at være bundet af lange kontrakter.
Se mere om kontorfællesskabet her.
Depositum: 36000 kr.
Information og data
Dette kontorfællesskab ligger i Ballerup. Ballerup har postnummeret 2750, og ligger i kommunen Ballerup, som ligger i Storkøbenhavn.
Lignende lokaler
-
1700 m2 lager til leje i 2750 Ballerup
Fri kontakt- 138.125 kr. per måned
- 975 kr/m2/år
Ofte stillede spørgsmål
Statistik over udviklingen i ledige kontorfællesskaber til leje i Ballerup over den sidste måned
Herunder ser du udviklingen i udbuddet og udlejningen af ledige kontorfællesskaber til leje i Ballerup over den sidste måned. I den første kolonne ser du datoen. I den anden kolonne ser du det samlede antal kontorfællesskaber til leje i Ballerup på datoen. I den tredje kolonne ser du antallet af nye kontorfællesskaber i Ballerup der er udbudt til leje på datoen. I den fjerde kolonne ser du antallet af kontorfællesskaber i Ballerup der er udlejet på datoen. Se også samlet statistik over alle udbudte kontorfællesskaber i Ballerup over tid, samlet statistik over nye kontorfællesskaber i Ballerup over tid, samlet statistik over udlejede kontorfællesskaber i Ballerup over tid.
| Dato | Alle kontorfællesskaber til leje | Nye kontorfællesskaber til leje | Udlejede kontorfællesskaber |
|---|---|---|---|
| 3. november 2025 | 6 | 0 | 0 |
| 2. november 2025 | 6 | 0 | 0 |
| 1. november 2025 | 6 | 0 | 0 |
| 31. oktober 2025 | 6 | 0 | 0 |
| 30. oktober 2025 | 6 | 0 | 0 |
| 29. oktober 2025 | 6 | 0 | 0 |
| 28. oktober 2025 | 6 | 0 | 0 |
| 27. oktober 2025 | 6 | 0 | 0 |
| 26. oktober 2025 | 6 | 0 | 0 |
| 25. oktober 2025 | 6 | 0 | 0 |
| 24. oktober 2025 | 6 | 0 | 0 |
| 23. oktober 2025 | 6 | 0 | 0 |
| 22. oktober 2025 | 6 | 0 | 0 |
| 21. oktober 2025 | 6 | 0 | 0 |
| 20. oktober 2025 | 6 | 0 | 0 |
| 19. oktober 2025 | 6 | 0 | 0 |
| 18. oktober 2025 | 6 | 0 | 0 |
| 17. oktober 2025 | 6 | 0 | 0 |
| 16. oktober 2025 | 6 | 0 | 0 |
| 15. oktober 2025 | 6 | 0 | 0 |
| 14. oktober 2025 | 6 | 0 | 0 |
| 13. oktober 2025 | 6 | 0 | 0 |
| 12. oktober 2025 | 6 | 0 | 0 |
| 11. oktober 2025 | 6 | 0 | 0 |
| 10. oktober 2025 | 6 | 0 | 0 |
| 9. oktober 2025 | 6 | 0 | 0 |
| 8. oktober 2025 | 6 | 0 | 0 |
| 7. oktober 2025 | 6 | 0 | 0 |
| 6. oktober 2025 | 6 | 0 | 0 |
| 5. oktober 2025 | 6 | 0 | 0 |
| 4. oktober 2025 | 6 | 0 | 0 |
Statistik over udbuddet af kontorfællesskaber til leje i Ballerup
I nedenstående tabel ser du en række data om udbuddet af kontorfællesskaber til leje i Ballerup.Se også samlet statistik over alle udbudte kontorfællesskaber i Ballerup over tid, samlet statistik over nye kontorfællesskaber i Ballerup over tid, samlet statistik over udlejede kontorfællesskaber i Ballerup over tid
| Kontorfællesskaber | |
|---|---|
| Antal ledige lokaler | 6 |
| Antal nye lokaler siden i går | 0 |
| Antal udlejede lokaler siden i går | 0 |
| Ledige m2 i alt | 6 |
| Gennemsnitlig pris per m2 per år uden drift | 0 |
| Højeste m2-pris | 0 |
| Laveste m2-pris | 0 |