SENESTE LOKALER
Virksomhedslokaler.dk i dag:
Nye i dag 1
Opdaterede 24h 24
Notifikationer om nye lokaler 1.259
Seneste opdatering 1 t siden
Aktive annoncer 14.930
Foto leveres af Google Street View og kan være upræcist:

Erhvervslokaler til leje, Fredericia, Thorsvej - Ca. 100m2

  • Ca. 100 m2
Erhvervslokaler til leje, Fredericia, Thorsvej - Ca. 100m2
Få mere info om lokalet

⚡ Se alle oplysninger om lejemålet og få direkte adgang til udlejerens kontaktoplysninger.

Erhvervslokaler til leje, Fredericia, Thorsvej - Ca. 100m2

  • Ca. 100 m2

Fakta

Rapportér fejl
  • 274689
  • Erhvervslokaler
  • Ca. 100 m2
  • Ikke angivet

Erhvervslokaler til leje i 7000 Fredericia

DK-Estate Erhvervsmægler tilbyder nu ejendommen på Thorsvej 27, 7000 Fredericia, en god investeringsmulighed for erhvervsinvestorer og projektudviklere.

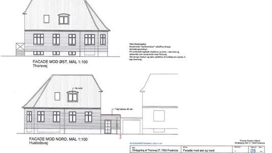
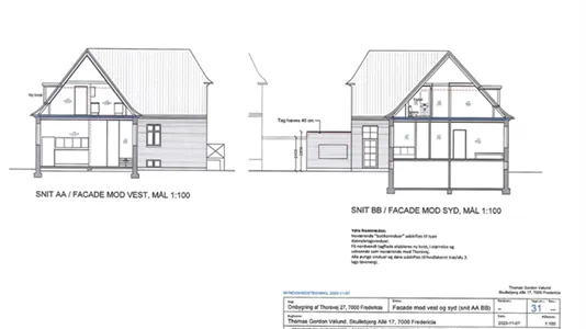
Ejendommen er oplagt som et mindre projektudvikling, hvilket fremhæves af det forberedende arbejde udført af den nuværende ejer. Der medfølger arkitekttegninger, byggetilladelse og brandrapport til udvikling af en 2 nye boliglejligheder i stueetagen, som vil erstatte de nuværende lejemål i ejendommen.

Ejendommens beliggenhed gør den især velegnet til udvikling af en lejligheder på grund af dens centrale placering i Fredericia. Desuden vil de kommende lejligheder i stueetagen og på første sal have fordel af en sydvendt beliggenhed med udsigt til den smukke, nyanlagte fælleshave.

Der er givet byggetilladelse jf. BR-18 til etablering af 2 boliger på henholdsvis 111 m2 (Stueplan/tidligere erhverv) og 107 m2 (St & 1.sal - Eksisterende bolig) med tilhørende depotrum i kælderen.

Aktuel anvendelse:

I øjeblikket omfatter ejendommen en boliglejlighed på 100 m² beliggende på første sal. Derudover består ejendommen af et 102 m² værksted og et 57 m² butikslokale. Erhvervslokalerne er i dag udlejet til en stabil lejer, en låsesmed, som har holdt til i ejendommen siden 2013. Låsesmeden i erhvervslokalerne har 3 måneders opsigelse.

Du er altid velkommen til at ringe til DK-Estate Erhvervsmægler på telefon[xxxxx]for mere information.

Information og data

Dette erhvervslejemål, som kan anvendes til Erhvervslokaler, ligger i Fredericia. Fredericia har postnummeret 7000, og ligger i kommunen Fredericia, som ligger i Region Sydjylland. Lokalet er i alt Ca. 100 m2.  

Lignende lokaler

1 mdr siden 1500 - 3000 m2 lager til leje i 7000 Fredericia, Nørrebrogade
1.500 - 3.000 m2
56.250 kr. per måned
Åbn
1 mdr siden 363 m2 kontor til leje i 6000 Kolding, Fynsvej
363 m2
19.506 kr. per måned
Åbn
1 mdr siden 320 m2 restaurant til leje i 7000 Fredericia, Gothersgade
320 m2
Ikke angivet
Åbn
1 mdr siden Erhvervslokaler til leje i 7000 Fredericia
Ikke angivet
Åbn
1 mdr siden Ca. 130 m2 erhvervslokaler til leje i 7000 Fredericia, Købmagergade
Ca. 130 m2
Ca. 7.500 kr. per måned
Åbn
1 mdr siden Ca. 60 m2 erhvervslokaler til leje i 7000 Fredericia, Brovadvej
Ca. 60 m2
Ca. 3.500 kr. per måned
Åbn
1 mdr siden Ca. 825 m2 erhvervslokaler til leje i 7000 Fredericia, Prangervej
Ca. 825 m2
Ca. 50.000 kr. per måned
Åbn
1 mdr siden Ca. 415 m2 erhvervslokaler til leje i 7000 Fredericia, Vesterballevej
Ca. 415 m2
Ca. 42.000 kr. per måned
Åbn
1 mdr siden 25 - 180 m2 kontor til leje i 7000 Fredericia, Brovadvej
25 - 180 m2
Ca. 4.000 kr. per måned
Åbn

Ofte stillede spørgsmål

Statistik over udviklingen i ledige erhvervslokaler til leje i Fredericia over den sidste måned

Herunder ser du udviklingen i udbuddet og udlejningen af ledige erhvervslokaler til leje i Fredericia over den sidste måned. I den første kolonne ser du datoen. I den anden kolonne ser du det samlede antal erhvervslokaler til leje i Fredericia på datoen. I den tredje kolonne ser du antallet af nye erhvervslokaler i Fredericia der er udbudt til leje på datoen. I den fjerde kolonne ser du antallet af erhvervslokaler i Fredericia der er udlejet på datoen. Se også samlet statistik over alle udbudte erhvervslokaler i Fredericia over tid, samlet statistik over nye erhvervslokaler i Fredericia over tid, samlet statistik over udlejede erhvervslokaler i Fredericia over tid.

Dato Alle erhvervslokaler til leje Nye erhvervslokaler til leje Udlejede erhvervslokaler
15. maj 2026 30 0 0
14. maj 2026 30 0 0
13. maj 2026 30 0 0
12. maj 2026 30 0 0
11. maj 2026 30 0 0
10. maj 2026 30 0 0
9. maj 2026 30 0 0
8. maj 2026 30 0 0
7. maj 2026 30 0 1
6. maj 2026 31 1 1
5. maj 2026 31 0 1
4. maj 2026 32 2 0
3. maj 2026 30 0 1
2. maj 2026 31 1 1
1. maj 2026 31 1 0
30. april 2026 30 0 1
29. april 2026 31 1 3
28. april 2026 33 1 0
27. april 2026 32 1 1
26. april 2026 32 0 0
25. april 2026 32 0 0
24. april 2026 32 1 2
23. april 2026 33 2 0
22. april 2026 31 0 2
21. april 2026 33 1 0
20. april 2026 32 0 0
19. april 2026 32 0 0
18. april 2026 32 0 2
17. april 2026 34 1 0
16. april 2026 33 0 0
15. april 2026 33 1 0

Statistik over udbuddet af erhvervslokaler til leje i Fredericia

I nedenstående tabel ser du en række data om udbuddet af erhvervslokaler til leje i Fredericia.Se også samlet statistik over alle udbudte erhvervslokaler i Fredericia over tid, samlet statistik over nye erhvervslokaler i Fredericia over tid, samlet statistik over udlejede erhvervslokaler i Fredericia over tid

Erhvervslokaler
Antal ledige lokaler 30
Antal nye lokaler siden i går 0
Antal udlejede lokaler siden i går 0
Ledige m2 i alt 27.896
Gennemsnitlig pris per m2 per år uden drift 713
Højeste m2-pris 1.262
Laveste m2-pris 292