Butik til leje, Kolding, - Ca. 115m2, Ca. 128.000 kr.
- Ca. 115 m2
- Ca. 10.500 kr. per måned
⚡ Se alle oplysninger om lejemålet og få direkte adgang til udlejerens kontaktoplysninger.
Butik til leje, Kolding, - Ca. 115m2, Ca. 128.000 kr.
- Ca. 115 m2
- Ca. 10.500 kr. per måned
Fakta
Rapportér fejl- 277016
- Butik
- Restaurant
- Klinik
- Ca. 115 m2
- Ca. 128.000 kr.
- Ca. 10.500 kr.
- Ca. 1.000 kr.
Klostergade 2, 6000 Kolding
Byforskønnelsesprojektet har været medvirkende til at styrke bymidtens identitet, med fokus på at integrere bydesign, arkitektur og bæredygtige løsninger.
I området har der ligeledes været fokus på at forbedre trafikflowet samt skabe mere plads til udeservicering.
De nye bymidterammer indbyder til byliv og et samlingspunkt for restauranter, specialforretninger, cafeér mv.
Lejemålet Klostergade 2, st. tv., Kolding byder, udover en meget attraktiv beliggenhed, også på nogle moderne og indbydende rammer, med eksempelvis store facadevinduer direkte ud mod Klostergade.
De mange og store facadevinduer gør lejemålet velegnet til udstilling af varer og sikrer dig en god synlighed.
Lejemålet har senest været anvendt som isbutik inklusiv eget produktionskøkken.
Lokalerne henvender sig derfor yderst godt til både en traditionel butik eller restaurant/café.
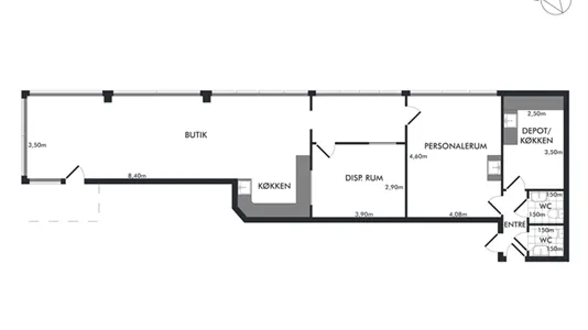
Lejemålet er indrettet med et stort regulært lokale med gode facadevinduer, baglokale/personalerum, køkken og toilet. Endvidere er der stort depot/lager i kælderen på 32 m².
Der er parkeringsmulighed i parkeringskælderen, Klostergaarden, som er beliggende i gåafstand til lejemålet.
Er du på udkig efter et flot og velbeliggende lejemål i et attraktivt område ved Kolding gågade, så er Klostergade 2, st. tv. et besøg værd
Lignende lokaler
| 5 d |
|
Klinik til leje i 6000 Kolding, Olaf Ryes Gade
|
5.850 kr. per måned
|
Åbn |
| 5 d |
|
547 m2 butik til leje i 6000 Kolding, Vejlevej
547 m2
|
38.746 kr. per måned
|
Åbn |
| 17 d |
|
Klinik til leje i 6000 Kolding
|
6.650 kr. per måned
|
Åbn |
| 3 d |
|
Klinik til leje i 6000 Kolding
|
4.950 kr. per måned
|
Åbn |
| 3 d |
|
Klinik til leje i 6000 Kolding
|
4.400 kr. per måned
|
Åbn |
| 17 d |
|
363 m2 kontor til leje i 6000 Kolding, Fynsvej
363 m2
|
19.506 kr. per måned
|
Åbn |
| 17 d |
|
Kontorfællesskab til leje i 6000 Kolding
|
Åbn | |
| 5 d |
|
268 m2 lager til leje i 6000 Kolding, Vejlevej
268 m2
|
12.953 kr. per måned
|
Åbn |
| 5 d |
|
54 m2 kontor til leje i 6000 Kolding, Olaf Ryes Gade
54 m2
|
4.600 kr. per måned
|
Åbn |
Ofte stillede spørgsmål
Statistik over udviklingen i ledige butikslokaler til leje i Kolding over den sidste måned
Herunder ser du udviklingen i udbuddet og udlejningen af ledige butikslokaler til leje i Kolding over den sidste måned. I den første kolonne ser du datoen. I den anden kolonne ser du det samlede antal butikslokaler til leje i Kolding på datoen. I den tredje kolonne ser du antallet af nye butikslokaler i Kolding der er udbudt til leje på datoen. I den fjerde kolonne ser du antallet af butikslokaler i Kolding der er udlejet på datoen. Se også samlet statistik over alle udbudte butikslokaler i Kolding over tid, samlet statistik over nye butikslokaler i Kolding over tid, samlet statistik over udlejede butikslokaler i Kolding over tid.
| Dato | Alle butikslokaler til leje | Nye butikslokaler til leje | Udlejede butikslokaler |
|---|---|---|---|
| 11. april 2026 | 55 | 0 | 0 |
| 10. april 2026 | 55 | 1 | 1 |
| 9. april 2026 | 55 | 2 | 0 |
| 8. april 2026 | 53 | 0 | 0 |
| 7. april 2026 | 53 | 1 | 0 |
| 6. april 2026 | 52 | 0 | 0 |
| 5. april 2026 | 52 | 0 | 0 |
| 4. april 2026 | 52 | 0 | 0 |
| 3. april 2026 | 52 | 0 | 0 |
| 2. april 2026 | 52 | 0 | 0 |
| 1. april 2026 | 52 | 1 | 2 |
| 31. marts 2026 | 53 | 0 | 2 |
| 30. marts 2026 | 55 | 0 | 0 |
| 29. marts 2026 | 55 | 1 | 0 |
| 28. marts 2026 | 54 | 0 | 2 |
| 27. marts 2026 | 56 | 28 | 0 |
| 26. marts 2026 | 28 | 0 | 22 |
| 25. marts 2026 | 50 | 0 | 7 |
| 24. marts 2026 | 57 | 0 | 1 |
| 23. marts 2026 | 58 | 0 | 0 |
| 22. marts 2026 | 58 | 0 | 0 |
| 21. marts 2026 | 58 | 1 | 0 |
| 20. marts 2026 | 57 | 0 | 1 |
| 19. marts 2026 | 58 | 0 | 0 |
| 18. marts 2026 | 58 | 0 | 0 |
| 17. marts 2026 | 58 | 0 | 1 |
| 16. marts 2026 | 59 | 0 | 0 |
| 15. marts 2026 | 59 | 0 | 0 |
| 14. marts 2026 | 59 | 0 | 0 |
| 13. marts 2026 | 59 | 0 | 0 |
| 12. marts 2026 | 59 | 0 | 0 |
Statistik over udbuddet af butikslokaler til leje i Kolding
I nedenstående tabel ser du en række data om udbuddet af butikslokaler til leje i Kolding.Se også samlet statistik over alle udbudte butikslokaler i Kolding over tid, samlet statistik over nye butikslokaler i Kolding over tid, samlet statistik over udlejede butikslokaler i Kolding over tid
| Butikslokaler | |
|---|---|
| Antal ledige lokaler | 55 |
| Antal nye lokaler siden i går | 0 |
| Antal udlejede lokaler siden i går | 0 |
| Ledige m2 i alt | 21.467 |
| Gennemsnitlig pris per m2 per år uden drift | 1.447 |
| Højeste m2-pris | 21.810 |
| Laveste m2-pris | 400 |