Foto leveres af Google Street View og kan være upræcist:

Lager til leje, Søborg, Se vej-navn[xxxxxxxxxx]

Se vej-navn[xxxxxxxxxx], 2860 - Søborg
  • Lager til leje
  • 104 m2
  • 7.850 kr. per måned
Lager til leje, Søborg, <span class="blurred street" onclick="ProcessAdRequest(267238)"><span class="hint">Se vej-navn</span>[xxxxxxxxxx]</span>
Se vej-navn[xxxxxxxxxx], 2860 - Søborg
  • Lager til leje
  • 104 m2
  • 7.850 kr. per måned

Lager til leje, Søborg, Se vej-navn[xxxxxxxxxx]

Fakta

Rapportér fejl
  • 267238
  • Lager
  • 104 m2
  • 94.200 kr.
  • 7.850 kr.
  • 905 kr.

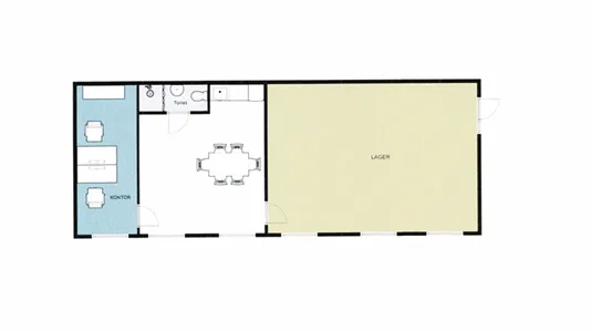
Erhvervslejemål med lager, kontor, toilet og frokoststue

Dette erhvervslejemål er netop blevet ledigt. Før indflytning istandsætter udlejer lokalerne. Lokalet ligger i rolig baggård, tæt på Søborg Hovedgade, Gentofte og København NV. Indflytning primo 2026. Der er ikke adgang direkte fra forhuset, men via bagvedliggende indkørsel bagom Rema 1000. Leje inkl. drift og aconto varme er 10.870 kr. pr md. ex. moms. Der er mulighed for at leje lidt ekstra lagerplads i garage eller skibscontainer. Bemærk postnummer er 2870 Dyssegård, Gentofte Kommune.

Information og data

Dette lagerlejemål, ligger i Søborg. Søborg har postnummeret 2860, og ligger i kommunen Gladsaxe, som ligger i Storkøbenhavn. Lokalet er i alt 104 m2. Du kan leje dette lagerlokale for 94.200 kr. per år.

Lignende lokaler

Ofte stillede spørgsmål

Statistik over udviklingen i ledige lagerlokaler til leje i Søborg over den sidste måned

Herunder ser du udviklingen i udbuddet og udlejningen af ledige lagerlokaler til leje i Søborg over den sidste måned. I den første kolonne ser du datoen. I den anden kolonne ser du det samlede antal lagerlokaler til leje i Søborg på datoen. I den tredje kolonne ser du antallet af nye lagerlokaler i Søborg der er udbudt til leje på datoen. I den fjerde kolonne ser du antallet af lagerlokaler i Søborg der er udlejet på datoen. Se også samlet statistik over alle udbudte lagerlokaler i Søborg over tid, samlet statistik over nye lagerlokaler i Søborg over tid, samlet statistik over udlejede lagerlokaler i Søborg over tid.

Dato Alle lagerlokaler til leje Nye lagerlokaler til leje Udlejede lagerlokaler
27. oktober 2025 34 0 2
26. oktober 2025 36 0 0
25. oktober 2025 36 1 1
24. oktober 2025 36 8 0
23. oktober 2025 28 1 7
22. oktober 2025 34 1 0
21. oktober 2025 33 0 2
20. oktober 2025 35 6 0
19. oktober 2025 29 0 0
18. oktober 2025 29 0 6
17. oktober 2025 35 6 0
16. oktober 2025 29 4 0
15. oktober 2025 25 0 0
14. oktober 2025 25 2 2
13. oktober 2025 25 1 0
12. oktober 2025 24 0 0
11. oktober 2025 24 0 0
10. oktober 2025 24 1 0
9. oktober 2025 23 4 5
8. oktober 2025 24 4 0
7. oktober 2025 20 0 0
6. oktober 2025 20 1 0
5. oktober 2025 19 0 2
4. oktober 2025 21 0 0
3. oktober 2025 21 1 0
2. oktober 2025 20 0 0
1. oktober 2025 20 0 0
30. september 2025 20 0 0
29. september 2025 20 0 0
28. september 2025 20 1 0
27. september 2025 19 0 0

Statistik over udbuddet af lagerlokaler til leje i Søborg

I nedenstående tabel ser du en række data om udbuddet af lagerlokaler til leje i Søborg.Se også samlet statistik over alle udbudte lagerlokaler i Søborg over tid, samlet statistik over nye lagerlokaler i Søborg over tid, samlet statistik over udlejede lagerlokaler i Søborg over tid

Lagerlokaler
Antal ledige lokaler 34
Antal nye lokaler siden i går 0
Antal udlejede lokaler siden i går 2
Ledige m2 i alt 51.924
Gennemsnitlig pris per m2 per år uden drift 997
Højeste m2-pris 7.382
Laveste m2-pris 240