Kontor til leje, København K, Nytorv - Ca. 100m2, Ca. 185.000 kr.
- Ca. 100 m2
- Ca. 15.500 kr. per måned
⚡ Se alle oplysninger om lejemålet og få direkte adgang til udlejerens kontaktoplysninger.
Kontor til leje, København K, Nytorv - Ca. 100m2, Ca. 185.000 kr.
- Ca. 100 m2
- Ca. 15.500 kr. per måned
Fakta
Rapportér fejl- 276650
- Kontor
- Klinik
- Ca. 15.500 kr.
- Ca. 210.000 kr.
- Ca. 17.500 kr.
- Ca. 2.000 kr.
- Ca. 2.000 kr.
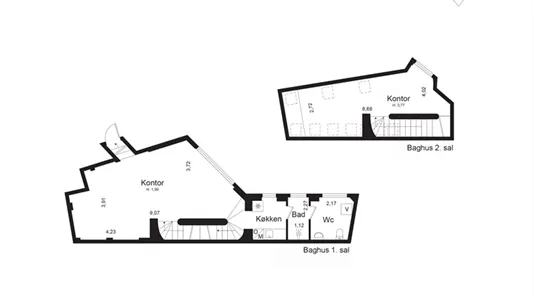
Smuk historiske baghus med charme og sjæl midt i KBH K
autentiske charme er bevaret og kombineret med moderne komfort. Ejendommen
ligger tilbagetrukket fra gaden i en rolig og stemningsfuld brostensbelagt gård.
Lejemålet udgør i alt 100 m² fordelt på to plan og fremstår lyst, indbydende og
nyistandsat.
Information og data
Dette kontorlejemål, som alternativt kan anvendes til Klinik, ligger i København K. København K har postnummeret 1450, og ligger i kommunen København, som ligger i København. Lokalet er i alt 100 m2. Du kan leje dette kontorlokale for Ca. 185.000 kr. per år.
Lignende lokaler
| 1 yr |
400 - 800 m2 kontor til leje i 1434 København K, Arsenalet, Danneskiold-Samsøes Allé
400 - 800 m2
|
Ikke angivet
|
Åbn |
| 1 yr |
927 m2 kontor til leje i 1434 København K, Danneskiold-Samsøes Allé
927 m2
|
Ikke angivet
|
Åbn |
| 3 mo |
Kontor til leje i 1434 København K, Arsenalet, Danneskiold-Samsøes Allé
N/A
|
Ikke angivet
|
Åbn |
| 28 d |
241 m2 kontor til leje i 1150 København K, Købmagergade
241 m2
|
Ikke angivet
|
Åbn |
| 28 d |
427 m2 kontor til leje i 1105 København K, Kristen Bernikows Gade
427 m2
|
Ikke angivet
|
Åbn |
| 3 yr |
Kontorhotel til leje i 1360 København K, Frederiksborggade
1 - 100 pladser
|
Ikke angivet
|
Åbn |
| 3 yr |
Kontorhotel til leje i 1058 København K, Havnegade
1 - 100 pladser
|
Ikke angivet
|
Åbn |
| 3 yr |
Kontorhotel til leje i 1165 København K, Nørregade
1 - 100 pladser
|
Ikke angivet
|
Åbn |
| 5 mo |
846 m2 lager til leje i 1439 København K, Quintus Bastion, Krudtløbsvej
846 m2
|
Ikke angivet
|
Åbn |
Ofte stillede spørgsmål
Statistik over udviklingen i ledige kontorlokaler til leje i København K over den sidste måned
Herunder ser du udviklingen i udbuddet og udlejningen af ledige kontorlokaler til leje i København K over den sidste måned. I den første kolonne ser du datoen. I den anden kolonne ser du det samlede antal kontorlokaler til leje i København K på datoen. I den tredje kolonne ser du antallet af nye kontorlokaler i København K der er udbudt til leje på datoen. I den fjerde kolonne ser du antallet af kontorlokaler i København K der er udlejet på datoen. Se også samlet statistik over alle udbudte kontorlokaler i København K over tid, samlet statistik over nye kontorlokaler i København K over tid, samlet statistik over udlejede kontorlokaler i København K over tid.
| Dato | Alle kontorlokaler til leje | Nye kontorlokaler til leje | Udlejede kontorlokaler |
|---|---|---|---|
| 2. april 2026 | 382 | 1 | 2 |
| 1. april 2026 | 383 | 5 | 6 |
| 31. marts 2026 | 384 | 3 | 0 |
| 30. marts 2026 | 381 | 3 | 2 |
| 29. marts 2026 | 380 | 3 | 0 |
| 28. marts 2026 | 377 | 1 | 2 |
| 27. marts 2026 | 378 | 244 | 0 |
| 26. marts 2026 | 134 | 0 | 209 |
| 25. marts 2026 | 343 | 3 | 31 |
| 24. marts 2026 | 371 | 1 | 5 |
| 23. marts 2026 | 375 | 0 | 0 |
| 22. marts 2026 | 375 | 0 | 0 |
| 21. marts 2026 | 375 | 1 | 1 |
| 20. marts 2026 | 375 | 6 | 7 |
| 19. marts 2026 | 376 | 4 | 4 |
| 18. marts 2026 | 376 | 2 | 0 |
| 17. marts 2026 | 374 | 1 | 0 |
| 16. marts 2026 | 373 | 0 | 0 |
| 15. marts 2026 | 373 | 0 | 0 |
| 14. marts 2026 | 373 | 6 | 5 |
| 13. marts 2026 | 372 | 13 | 0 |
| 12. marts 2026 | 359 | 3 | 14 |
| 11. marts 2026 | 370 | 2 | 0 |
| 10. marts 2026 | 368 | 7 | 16 |
| 9. marts 2026 | 377 | 3 | 0 |
| 8. marts 2026 | 374 | 1 | 1 |
| 7. marts 2026 | 374 | 3 | 3 |
| 6. marts 2026 | 374 | 13 | 1 |
| 5. marts 2026 | 362 | 4 | 5 |
| 4. marts 2026 | 363 | 1 | 5 |
| 3. marts 2026 | 367 | 1 | 0 |
Statistik over udbuddet af kontorlokaler til leje i København K
I nedenstående tabel ser du en række data om udbuddet af kontorlokaler til leje i København K.Se også samlet statistik over alle udbudte kontorlokaler i København K over tid, samlet statistik over nye kontorlokaler i København K over tid, samlet statistik over udlejede kontorlokaler i København K over tid
| Kontorlokaler | |
|---|---|
| Antal ledige lokaler | 382 |
| Antal nye lokaler siden i går | 1 |
| Antal udlejede lokaler siden i går | 2 |
| Ledige m2 i alt | 213.992 |
| Gennemsnitlig pris per m2 per år uden drift | 2.155 |
| Højeste m2-pris | 12.000 |
| Laveste m2-pris | 1 |