Kontor til leje, København K, Toldbodgade - Ca. 185m2, Ikke angivet
- Ca. 185 m2
⚡ Se alle oplysninger om lejemålet og få direkte adgang til udlejerens kontaktoplysninger.
Kontor til leje, København K, Toldbodgade - Ca. 185m2, Ikke angivet
- Ca. 185 m2
PRO-UDLEJER
Læs mereByens Bedste Baghus med rigtig kongelig nabo
Lejemålet ligger i en smuk, historisk ejendom, der tidligere husede Toldbod Dampmølle. Ejendommen er i dag gennemrenoveret og moderniseret med stor respekt for dens oprindelige arkitektur. Den står smukt med synlige, gamle bjælker og med alle moderne faciliteter. Ejendommen har fibernet fra TDC og Global Connect.
Beliggenhed:
500 m. fra Marmorkirkens Metro. 300 m til Kvæsthusmolens parkeringshus med 500 pladser.
Indretning:
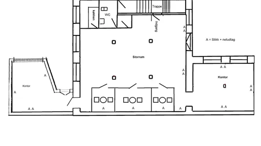
Lejemålet som ligger i baghuset er indrettet med 1 storrumskontor / samt 2 kontorer og 3 små mødelokaler/telefonrum, køkken og toilet. (se tegning)
5-20 arbejdspladser.
Ekstra faciliteter:
· Mulighed af at leje P-plads i gården.
· Ejendommen er forsynet med solcellestrøm fra eget solcelleanlæg som dækker ca. 50% af ejendommens strømforbrug
Information og data
Dette kontorlejemål, ligger i København K. København K har postnummeret 1253, og ligger i kommunen København, som ligger i København. Lokalet er i alt 185 m2.
Lignende lokaler
| 2 yr |
469 - 5859 m2 kontor til leje i 1434 København K, Danneskiold-Samsøes Allé
469 - 5.859 m2
|
Ikke angivet
|
Åbn |
| 1 yr |
400 - 800 m2 kontor til leje i 1434 København K, Arsenalet, Danneskiold-Samsøes Allé
400 - 800 m2
|
Ikke angivet
|
Åbn |
| 1 yr |
927 m2 kontor til leje i 1434 København K, Danneskiold-Samsøes Allé
927 m2
|
Ikke angivet
|
Åbn |
| 3 mo |
Kontor til leje i 1434 København K, Arsenalet, Danneskiold-Samsøes Allé
N/A
|
Ikke angivet
|
Åbn |
| 30 d |
427 m2 kontor til leje i 1105 København K, Kristen Bernikows Gade
427 m2
|
Ikke angivet
|
Åbn |
| 5 yr |
15 - 100 m2 klinik til leje i 1057 København K, Holbergsgade
15 - 100 m2
|
Ikke angivet
|
Åbn |
| 3 yr |
Kontorhotel til leje i 1058 København K, Havnegade
1 - 100 pladser
|
Ikke angivet
|
Åbn |
| 2 yr |
Kontorhotel til leje i 1112 København K, Pilestræde
1 - 100 pladser
|
Ikke angivet
|
Åbn |
| 5 mo |
846 m2 lager til leje i 1439 København K, Quintus Bastion, Krudtløbsvej
846 m2
|
Ikke angivet
|
Åbn |
Ofte stillede spørgsmål
Statistik over udviklingen i ledige kontorlokaler til leje i København K over den sidste måned
Herunder ser du udviklingen i udbuddet og udlejningen af ledige kontorlokaler til leje i København K over den sidste måned. I den første kolonne ser du datoen. I den anden kolonne ser du det samlede antal kontorlokaler til leje i København K på datoen. I den tredje kolonne ser du antallet af nye kontorlokaler i København K der er udbudt til leje på datoen. I den fjerde kolonne ser du antallet af kontorlokaler i København K der er udlejet på datoen. Se også samlet statistik over alle udbudte kontorlokaler i København K over tid, samlet statistik over nye kontorlokaler i København K over tid, samlet statistik over udlejede kontorlokaler i København K over tid.
| Dato | Alle kontorlokaler til leje | Nye kontorlokaler til leje | Udlejede kontorlokaler |
|---|---|---|---|
| 4. april 2026 | 382 | 0 | 0 |
| 3. april 2026 | 382 | 0 | 0 |
| 2. april 2026 | 382 | 1 | 2 |
| 1. april 2026 | 383 | 5 | 6 |
| 31. marts 2026 | 384 | 3 | 0 |
| 30. marts 2026 | 381 | 3 | 2 |
| 29. marts 2026 | 380 | 3 | 0 |
| 28. marts 2026 | 377 | 1 | 2 |
| 27. marts 2026 | 378 | 244 | 0 |
| 26. marts 2026 | 134 | 0 | 209 |
| 25. marts 2026 | 343 | 3 | 31 |
| 24. marts 2026 | 371 | 1 | 5 |
| 23. marts 2026 | 375 | 0 | 0 |
| 22. marts 2026 | 375 | 0 | 0 |
| 21. marts 2026 | 375 | 1 | 1 |
| 20. marts 2026 | 375 | 6 | 7 |
| 19. marts 2026 | 376 | 4 | 4 |
| 18. marts 2026 | 376 | 2 | 0 |
| 17. marts 2026 | 374 | 1 | 0 |
| 16. marts 2026 | 373 | 0 | 0 |
| 15. marts 2026 | 373 | 0 | 0 |
| 14. marts 2026 | 373 | 6 | 5 |
| 13. marts 2026 | 372 | 13 | 0 |
| 12. marts 2026 | 359 | 3 | 14 |
| 11. marts 2026 | 370 | 2 | 0 |
| 10. marts 2026 | 368 | 7 | 16 |
| 9. marts 2026 | 377 | 3 | 0 |
| 8. marts 2026 | 374 | 1 | 1 |
| 7. marts 2026 | 374 | 3 | 3 |
| 6. marts 2026 | 374 | 13 | 1 |
| 5. marts 2026 | 362 | 4 | 0 |
Statistik over udbuddet af kontorlokaler til leje i København K
I nedenstående tabel ser du en række data om udbuddet af kontorlokaler til leje i København K.Se også samlet statistik over alle udbudte kontorlokaler i København K over tid, samlet statistik over nye kontorlokaler i København K over tid, samlet statistik over udlejede kontorlokaler i København K over tid
| Kontorlokaler | |
|---|---|
| Antal ledige lokaler | 382 |
| Antal nye lokaler siden i går | 0 |
| Antal udlejede lokaler siden i går | 0 |
| Ledige m2 i alt | 213.992 |
| Gennemsnitlig pris per m2 per år uden drift | 2.155 |
| Højeste m2-pris | 12.000 |
| Laveste m2-pris | 1 |