Foto leveres af Google Street View og kan være upræcist:

Kontor til leje, København K, Se vej-navn[xxxxxxxxxx]

Se vej-navn[xxxxxxxxxx], 1000-1499 København K
  • Kontor til leje
  • 56 m2
Kontor til leje, København K, <span class="blurred street" onclick="ProcessAdRequest(251387)"><span class="hint">Se vej-navn</span>[xxxxxxxxxx]</span>
Se vej-navn[xxxxxxxxxx], 1000-1499 København K
  • Kontor til leje
  • 56 m2

Kontor til leje, København K, Se vej-navn[xxxxxxxxxx]

Fakta

Rapportér fejl
  • 251387
  • Kontor
  • 56 m2
  • Ikke angivet

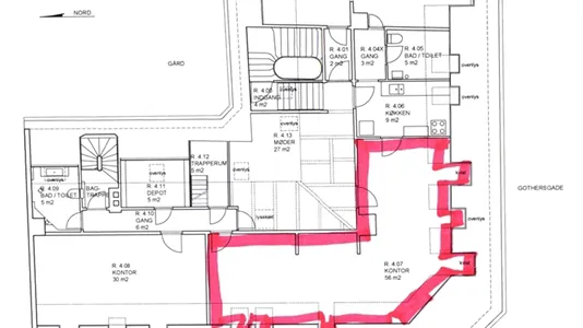
Ledigt lokale til liberalt erhverv i historisk hus ved Kongens Have

Nyrenoveret lokale med plads til 4-6 arbejdsborde og reolplads på en hyggelig tagetage I en historisk ejendom ved Kongens Have i København.

Det drejer sig om et skrå-vægget hjørnelokale på 56 kvm, hvor der er mulighed for at drive liberalt erhverv i rolige omgivelser.

Til rådighed er der desuden et fælles møderum på ca. 24 kvm, samt et køkken og toilet til deling.

Lokalerne er velegnede til brug af arkitekter, eller andre virksomheder fra beslægtede fag samt andre mindre virksomheder med liberalt erhverv.

Månedslejen for lokalerne er kr. 9.000 inkl. moms, plus andele af de månedlige fællesudgifter. (D.v.s. udgifterne til vand, varme, El, internet o.s.v.)

Depositum er 3 måneds forudbetalt leje. Løbende leje lægges den 1. i hver måned.

Er du / I interesseret, hører vi gerne fra dig/jer, så I kan opleve lokaliteterne.

Information og data

Dette kontorlejemål, ligger i København K. København K har postnummeret 1306, og ligger i kommunen København, som ligger i København. Lokalet er i alt 56 m2.

Lignende lokaler

Ofte stillede spørgsmål

Statistik over udviklingen i ledige kontorlokaler til leje i København K over den sidste måned

Herunder ser du udviklingen i udbuddet og udlejningen af ledige kontorlokaler til leje i København K over den sidste måned. I den første kolonne ser du datoen. I den anden kolonne ser du det samlede antal kontorlokaler til leje i København K på datoen. I den tredje kolonne ser du antallet af nye kontorlokaler i København K der er udbudt til leje på datoen. I den fjerde kolonne ser du antallet af kontorlokaler i København K der er udlejet på datoen. Se også samlet statistik over alle udbudte kontorlokaler i København K over tid, samlet statistik over nye kontorlokaler i København K over tid, samlet statistik over udlejede kontorlokaler i København K over tid.

Dato Alle kontorlokaler til leje Nye kontorlokaler til leje Udlejede kontorlokaler
16. december 2025 407 0 2
15. december 2025 409 1 2
14. december 2025 410 1 0
13. december 2025 409 2 5
12. december 2025 412 22 22
11. december 2025 412 18 0
10. december 2025 394 6 0
9. december 2025 388 5 0
8. december 2025 383 0 6
7. december 2025 389 0 0
6. december 2025 389 17 0
5. december 2025 372 0 22
4. december 2025 394 4 6
3. december 2025 396 6 4
2. december 2025 394 1 0
1. december 2025 393 1 3
30. november 2025 395 1 0
29. november 2025 394 1 0
28. november 2025 393 6 10
27. november 2025 397 8 4
26. november 2025 393 4 0
25. november 2025 389 1 0
24. november 2025 388 0 2
23. november 2025 390 0 0
22. november 2025 390 1 1
21. november 2025 390 10 8
20. november 2025 388 8 0
19. november 2025 380 8 4
18. november 2025 376 1 0
17. november 2025 375 1 0
16. november 2025 374 0 0

Statistik over udbuddet af kontorlokaler til leje i København K

I nedenstående tabel ser du en række data om udbuddet af kontorlokaler til leje i København K.Se også samlet statistik over alle udbudte kontorlokaler i København K over tid, samlet statistik over nye kontorlokaler i København K over tid, samlet statistik over udlejede kontorlokaler i København K over tid

Kontorlokaler
Antal ledige lokaler 408
Antal nye lokaler siden i går 0
Antal udlejede lokaler siden i går 2
Ledige m2 i alt 213.277
Gennemsnitlig pris per m2 per år uden drift 2.113
Højeste m2-pris 9.176
Laveste m2-pris 1