SENESTE LOKALER
Virksomhedslokaler.dk i dag:
Nye i dag 18
Opdaterede 24h 18
Notifikationer om nye lokaler 1.983
Seneste opdatering 15 min siden
Aktive annoncer 14.937
Foto leveres af Google Street View og kan være upræcist:

Erhvervslokaler til leje, Fredericia, Købmagergade - Ca. 130m2, Ca. 90.000 kr.

  • Ca. 130 m2
  • Ca. 7.500 kr. per måned
Erhvervslokaler til leje, Fredericia, Købmagergade - Ca. 130m2, Ca. 90.000 kr.
Få mere info om lokalet

⚡ Se alle oplysninger om lejemålet og få direkte adgang til udlejerens kontaktoplysninger.

Erhvervslokaler til leje, Fredericia, Købmagergade - Ca. 130m2, Ca. 90.000 kr.

  • Ca. 130 m2
  • Ca. 7.500 kr. per måned

Fakta

Rapportér fejl
  • 229382
  • Erhvervslokaler
  • Ca. 130 m2
  • Ca. 90.000 kr.
  • Ca. 7.500 kr.
  • Ca. 500 kr.

Erhvervslokaler til leje i 7000 Fredericia

kan nu tilbyde lokalet på Købmagergade 20, Stuen i Fredericia.

Attraktive lokalerne med god beliggenhed centralt i Fredericia.

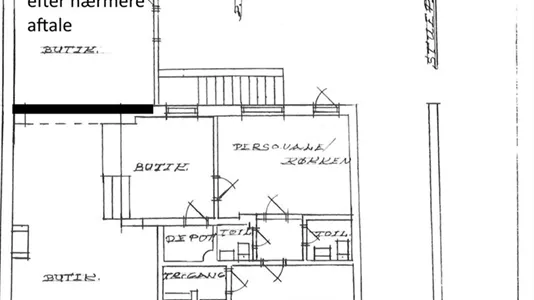
Lokalerne er beliggende på Købmagergade 20, tæt på gågaden og med gode parkeringsmuligheder rundt om lejemålet. Butikslokalet har god eksponering ud mod Købmagergade der dagligt har mange forbipasserende.

Lejemålet fremstår indbydende med store butiksvinduer, et stort rummeligt butikslokale samt et funktionelt køkken med tilstødende kontor/lager og egen bagindgang.

Lejemålet er på 130 m2 og har egen parkering i gården, samlet 3 lokaler og mulighed for at leje yderligere 2 lokaler på ca. 45 m2. Lokalerne overtages hvid malet, med klinke gulvbelægning samt 2 toiletter. Nuværende lejer er netop fraflyttet, hvorved lejemålet kan overtages snarest muligt.

Du er altid velkommen til at kontakte DK-Estate Erhvervsmægler på tlf. [xxxxx]for yderligere.

Information og data

Dette erhvervslejemål, som kan anvendes til Erhvervslokaler, ligger i Fredericia. Fredericia har postnummeret 7000, og ligger i kommunen Fredericia, som ligger i Region Sydjylland. Lokalet er i alt Ca. 130 m2. Du kan leje dette lokale for Ca. 90.000 kr. per år.  

Lignende lokaler

1 mdr siden 1500 - 3000 m2 lager til leje i 7000 Fredericia, Nørrebrogade
1.500 - 3.000 m2
56.250 kr. per måned
Åbn
1 mdr siden 363 m2 kontor til leje i 6000 Kolding, Fynsvej
363 m2
19.506 kr. per måned
Åbn
1 mdr siden 320 m2 restaurant til leje i 7000 Fredericia, Gothersgade
320 m2
Ikke angivet
Åbn
1 mdr siden Erhvervslokaler til leje i 7000 Fredericia
Ikke angivet
Åbn
1 mdr siden Ca. 60 m2 erhvervslokaler til leje i 7000 Fredericia, Brovadvej
Ca. 60 m2
Ca. 3.500 kr. per måned
Åbn
1 mdr siden Ca. 825 m2 erhvervslokaler til leje i 7000 Fredericia, Prangervej
Ca. 825 m2
Ca. 50.000 kr. per måned
Åbn
1 mdr siden Ca. 195 m2 erhvervslokaler til leje i 7000 Fredericia, Prangervej
Ca. 195 m2
Ca. 13.500 kr. per måned
Åbn
1 mdr siden Ca. 415 m2 erhvervslokaler til leje i 7000 Fredericia, Vesterballevej
Ca. 415 m2
Ca. 42.000 kr. per måned
Åbn
1 mdr siden 25 - 180 m2 kontor til leje i 7000 Fredericia, Brovadvej
25 - 180 m2
Ca. 4.000 kr. per måned
Åbn

Ofte stillede spørgsmål

Statistik over udviklingen i ledige erhvervslokaler til leje i Fredericia over den sidste måned

Herunder ser du udviklingen i udbuddet og udlejningen af ledige erhvervslokaler til leje i Fredericia over den sidste måned. I den første kolonne ser du datoen. I den anden kolonne ser du det samlede antal erhvervslokaler til leje i Fredericia på datoen. I den tredje kolonne ser du antallet af nye erhvervslokaler i Fredericia der er udbudt til leje på datoen. I den fjerde kolonne ser du antallet af erhvervslokaler i Fredericia der er udlejet på datoen. Se også samlet statistik over alle udbudte erhvervslokaler i Fredericia over tid, samlet statistik over nye erhvervslokaler i Fredericia over tid, samlet statistik over udlejede erhvervslokaler i Fredericia over tid.

Dato Alle erhvervslokaler til leje Nye erhvervslokaler til leje Udlejede erhvervslokaler
16. maj 2026 30 0 0
15. maj 2026 30 0 0
14. maj 2026 30 0 0
13. maj 2026 30 0 0
12. maj 2026 30 0 0
11. maj 2026 30 0 0
10. maj 2026 30 0 0
9. maj 2026 30 0 0
8. maj 2026 30 0 0
7. maj 2026 30 0 1
6. maj 2026 31 1 1
5. maj 2026 31 0 1
4. maj 2026 32 2 0
3. maj 2026 30 0 1
2. maj 2026 31 1 1
1. maj 2026 31 1 0
30. april 2026 30 0 1
29. april 2026 31 1 3
28. april 2026 33 1 0
27. april 2026 32 1 1
26. april 2026 32 0 0
25. april 2026 32 0 0
24. april 2026 32 1 2
23. april 2026 33 2 0
22. april 2026 31 0 2
21. april 2026 33 1 0
20. april 2026 32 0 0
19. april 2026 32 0 0
18. april 2026 32 0 2
17. april 2026 34 1 0
16. april 2026 33 0 0

Statistik over udbuddet af erhvervslokaler til leje i Fredericia

I nedenstående tabel ser du en række data om udbuddet af erhvervslokaler til leje i Fredericia.Se også samlet statistik over alle udbudte erhvervslokaler i Fredericia over tid, samlet statistik over nye erhvervslokaler i Fredericia over tid, samlet statistik over udlejede erhvervslokaler i Fredericia over tid

Erhvervslokaler
Antal ledige lokaler 30
Antal nye lokaler siden i går 0
Antal udlejede lokaler siden i går 0
Ledige m2 i alt 27.896
Gennemsnitlig pris per m2 per år uden drift 713
Højeste m2-pris 1.262
Laveste m2-pris 292