Kontor til leje, Herlev, Lyskær
Lyskær, 2730 - Herlev- Kontor til leje
- 687 m2
- 56.964 kr. per måned
- Kontor til leje
- 687 m2
- 56.964 kr. per måned
Dette lokale er ikke længere ledigt.
Søg tilsvarende lokaler på Virksomhedslokaler.dk
Kontor til leje, Herlev, Lyskær
Fakta
Rapportér fejl- 228375
- Kontor
- 687 m2
- 683.565 kr.
- 56.964 kr.
- 880.047 kr.
- 73.337 kr.
- 995 kr.
- 1.281 kr.
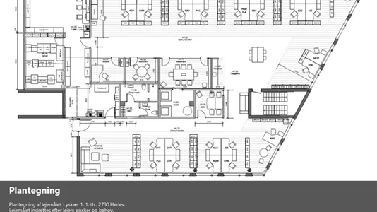
På 1. etage udlejes 687 skønne m² med stor synlighed ud til Ring3 i Herlev
Lejemålet på 687 m² er beliggende på 1. etage, i et meget velfungerende flerbrugerhus. Lejemålet er indrettet med storrumskontor. Lejemålet egner sig fx godt til at afskærme og lave mindre eller større kontorgrupper med borde, loungeområde, el. lign. Der er åbent og lyst tekøkken, flere møderum / stillerum samt teknikrum og toilet- og badfaciliteter. Lejemålet overtages nyistandsat og indrettes efter lejers ønsker og behov. Der er plads til ca. 28 arbejdspladser.
Ejendommen
Ejendommen på Lyskær 1 er et stort flerbrugerhus. Ejendommen fremstår både udvendigt og indvendigt yderst præsentabel. Som lejer i denne ejendom får du adgang til fri afbenyttelse af et stort mødelokale med plads til 24 personer samt et stort konferencelokale der ligger i forlængelse af kantinen – begge med AV-udstyr. Huset tilbyder også kantine med cateringfirma, der giver adgang til køb af tilberedt frokost hver dag, samt mulighed for bestilling af mødeforplejning til dine møder.
Parkering
Parkering er altafgørende, og derfor lægger vi stor vægt på, at dette er tilgængeligt for vores lejere. Der er både mulighed for at parkere i terrænet samt i vores store parkeringskælder. Vi tilbyder også udlejning af p-pladser med ladestander til din el-bil.
Beliggenhed
Ejendommen har facade direkte ud til Ring3, der dagligt har enormt mange forbipasserende biler, hvorfor dette giver anledning til stor eksponering. Der er busstoppested lige uden for døren og du når Herlev S-tog Station på kun 10 minutters gang. Yderligere får den kommende letbane et stoppested lige uden for ejendommen.
Information og data
Dette kontorlejemål, ligger i Herlev. Herlev har postnummeret 2730, og ligger i kommunen Herlev, som ligger i Storkøbenhavn. Lokalet er i alt 687 m2. Du kan leje dette kontorlokale for 683.565 kr. per år.
Lignende lokaler
-
1134 m2 lager til leje i 2730 Herlev, Marielundvej
Fri kontakt- 76.450 kr. per måned
- 809 kr/m2/år
Ofte stillede spørgsmål
Statistik over udviklingen i ledige kontorlokaler til leje i Herlev over den sidste måned
Herunder ser du udviklingen i udbuddet og udlejningen af ledige kontorlokaler til leje i Herlev over den sidste måned. I den første kolonne ser du datoen. I den anden kolonne ser du det samlede antal kontorlokaler til leje i Herlev på datoen. I den tredje kolonne ser du antallet af nye kontorlokaler i Herlev der er udbudt til leje på datoen. I den fjerde kolonne ser du antallet af kontorlokaler i Herlev der er udlejet på datoen. Se også samlet statistik over alle udbudte kontorlokaler i Herlev over tid, samlet statistik over nye kontorlokaler i Herlev over tid, samlet statistik over udlejede kontorlokaler i Herlev over tid.
| Dato | Alle kontorlokaler til leje | Nye kontorlokaler til leje | Udlejede kontorlokaler |
|---|---|---|---|
| 11. december 2025 | 154 | 13 | 0 |
| 10. december 2025 | 141 | 2 | 3 |
| 9. december 2025 | 142 | 0 | 4 |
| 8. december 2025 | 146 | 0 | 2 |
| 7. december 2025 | 148 | 0 | 0 |
| 6. december 2025 | 148 | 6 | 6 |
| 5. december 2025 | 148 | 5 | 0 |
| 4. december 2025 | 143 | 3 | 1 |
| 3. december 2025 | 141 | 6 | 5 |
| 2. december 2025 | 140 | 9 | 1 |
| 1. december 2025 | 132 | 0 | 1 |
| 30. november 2025 | 133 | 0 | 0 |
| 29. november 2025 | 133 | 0 | 0 |
| 28. november 2025 | 133 | 0 | 0 |
| 27. november 2025 | 133 | 0 | 0 |
| 26. november 2025 | 133 | 0 | 0 |
| 25. november 2025 | 133 | 6 | 6 |
| 24. november 2025 | 133 | 3 | 0 |
| 23. november 2025 | 130 | 0 | 0 |
| 22. november 2025 | 130 | 0 | 0 |
| 21. november 2025 | 130 | 0 | 0 |
| 20. november 2025 | 130 | 0 | 0 |
| 19. november 2025 | 130 | 0 | 0 |
| 18. november 2025 | 130 | 0 | 0 |
| 17. november 2025 | 130 | 0 | 0 |
| 16. november 2025 | 130 | 0 | 0 |
| 15. november 2025 | 130 | 0 | 0 |
| 14. november 2025 | 130 | 0 | 0 |
| 13. november 2025 | 130 | 0 | 1 |
| 12. november 2025 | 131 | 0 | 3 |
| 11. november 2025 | 134 | 0 | 0 |
Statistik over udbuddet af kontorlokaler til leje i Herlev
I nedenstående tabel ser du en række data om udbuddet af kontorlokaler til leje i Herlev.Se også samlet statistik over alle udbudte kontorlokaler i Herlev over tid, samlet statistik over nye kontorlokaler i Herlev over tid, samlet statistik over udlejede kontorlokaler i Herlev over tid
| Kontorlokaler | |
|---|---|
| Antal ledige lokaler | 157 |
| Antal nye lokaler siden i går | 13 |
| Antal udlejede lokaler siden i går | 0 |
| Ledige m2 i alt | 157.392 |
| Gennemsnitlig pris per m2 per år uden drift | 841 |
| Højeste m2-pris | 1.650 |
| Laveste m2-pris | 450 |