Kontorfællesskab til leje, Randers C
8900 - Randers C- Kontorfællesskab til leje
 
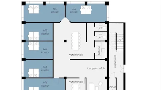
            - Kontorfællesskab til leje
⚡ Skriv direkte til udbyderen⚡ Ledigt – først til mølle⚡ De bedste lokaler før andre
Kontorfællesskab til leje, Randers C
Fakta
Rapportér fejl- 252179
- Kontorfællesskab
- Ikke angivet
⚡ Skriv direkte til udbyderen⚡ Ledigt – først til mølle⚡ De bedste lokaler før andre
Ingen binding, kontor til 3.950 kr.
Her får du også:
All inclusive: Hos Copenhagen Real Estate er vores lejere i fokus. EasyOffice kontorfællesskaber sørger for alle detaljer, så du kan koncentrere dig om din forretning. I prisen er inkluderet internet, el, vand og varme samt rengøring af fællesarealerne.
Central beliggenhed i Randers: Kontorfællesskabet er tæt på Randers hyggelige gågademiljø med butikker og caféer. Ejendommen har gode tilkørselsforhold og mulighed for at leje p-licens direkte ved ejendommen.
Ubegrænset adgang til mødelokalerne og fælles faciliteter: Med et kontorlokale i Randers EasyOffice får du ikke kun dit eget arbejdsområde, du får også ubegrænset adgang til vores mødelokaler på tværs af 7 byer fordelt på 100+ lejemål. Dette gør det let at mødes og samarbejde med dine klienter. Vores kontorhotel tilbyder moderne fælles faciliteter, herunder mødelokaler, hyggelige loungeområder og et fælles køkken.
Fleksibel lejekontrakt: Vi tilbyder fleksible lejekontrakter, hvor du selv bestemmer tidshorisonten. Du kan tilpasse lejeperioden efter dine behov uden at være bundet af lange kontrakter.
Unik kontorbygning: Ejendommen er en flot hvidpudset bygning, med et unikt, moderne arkitektonisk udtryk, som fremstår nyindrettet både indvendig og udvendig.
Se mere om kontorfællesskabet her.
Depositum: 3 kr.
Information og data
Dette kontorfællesskab ligger i Randers C. Randers C har postnummeret 8900, og ligger i kommunen Randers, som ligger i Randers.
Ofte stillede spørgsmål
Statistik over udviklingen i ledige kontorfællesskaber til leje i Randers C over den sidste måned
Herunder ser du udviklingen i udbuddet og udlejningen af ledige kontorfællesskaber til leje i Randers C over den sidste måned. I den første kolonne ser du datoen. I den anden kolonne ser du det samlede antal kontorfællesskaber til leje i Randers C på datoen. I den tredje kolonne ser du antallet af nye kontorfællesskaber i Randers C der er udbudt til leje på datoen. I den fjerde kolonne ser du antallet af kontorfællesskaber  i Randers C der er udlejet på datoen.  Se også samlet statistik over alle udbudte kontorfællesskaber  i Randers C over tid, samlet statistik over nye kontorfællesskaber  i Randers C over tid, samlet statistik over udlejede kontorfællesskaber  i Randers C over tid.
| Dato | Alle kontorfællesskaber til leje | Nye kontorfællesskaber til leje | Udlejede kontorfællesskaber | 
|---|---|---|---|
| 30. oktober 2025 | 7 | 0 | 0 | 
| 29. oktober 2025 | 7 | 1 | 1 | 
| 28. oktober 2025 | 7 | 1 | 0 | 
| 27. oktober 2025 | 6 | 0 | 0 | 
| 26. oktober 2025 | 6 | 0 | 0 | 
| 25. oktober 2025 | 6 | 0 | 0 | 
| 24. oktober 2025 | 6 | 0 | 0 | 
| 23. oktober 2025 | 6 | 0 | 1 | 
| 22. oktober 2025 | 7 | 1 | 1 | 
| 21. oktober 2025 | 7 | 1 | 0 | 
| 20. oktober 2025 | 6 | 0 | 0 | 
| 19. oktober 2025 | 6 | 0 | 0 | 
| 18. oktober 2025 | 6 | 0 | 0 | 
| 17. oktober 2025 | 6 | 0 | 0 | 
| 16. oktober 2025 | 6 | 0 | 0 | 
| 15. oktober 2025 | 6 | 0 | 0 | 
| 14. oktober 2025 | 6 | 1 | 1 | 
| 13. oktober 2025 | 6 | 0 | 0 | 
| 12. oktober 2025 | 6 | 0 | 0 | 
| 11. oktober 2025 | 6 | 0 | 0 | 
| 10. oktober 2025 | 6 | 0 | 0 | 
| 9. oktober 2025 | 6 | 0 | 0 | 
| 8. oktober 2025 | 6 | 0 | 0 | 
| 7. oktober 2025 | 6 | 0 | 0 | 
| 6. oktober 2025 | 6 | 0 | 0 | 
| 5. oktober 2025 | 6 | 0 | 0 | 
| 4. oktober 2025 | 6 | 0 | 0 | 
| 3. oktober 2025 | 6 | 0 | 0 | 
| 2. oktober 2025 | 6 | 0 | 0 | 
| 1. oktober 2025 | 6 | 0 | 0 | 
| 30. september 2025 | 6 | 0 | 0 | 
Statistik over udbuddet af kontorfællesskaber til leje i Randers C
I nedenstående tabel ser du en række data om udbuddet af kontorfællesskaber til leje i Randers C.Se også samlet statistik over alle udbudte kontorfællesskaber  i Randers C over tid, samlet statistik over nye kontorfællesskaber  i Randers C over tid, samlet statistik over udlejede kontorfællesskaber  i Randers C over tid
| Kontorfællesskaber | |
|---|---|
| Antal ledige lokaler | 7 | 
| Antal nye lokaler siden i går | 0 | 
| Antal udlejede lokaler siden i går | 0 | 
| Ledige m2 i alt | 7 | 
| Gennemsnitlig pris per m2 per år uden drift | 0 | 
| Højeste m2-pris | 0 | 
| Laveste m2-pris | 0 | 
 
                    
                 
                    
                 
                    
                 
                    
                 
                    
                 
                    
                 
                    
                 
                    
                 
                    
                 
                    
                 
                    
                 
             
                 
                 
                 
                 
                 
                 
                 
                