Lager til leje, Bjerringbro,
, 8850 - Bjerringbro- Lager til leje
- 300 - 1.933 m2
- Lager til leje
- 300 - 1.933 m2
Dette lokale er ikke længere ledigt.
Søg tilsvarende lokaler på Virksomhedslokaler.dk
Lager til leje, Bjerringbro,
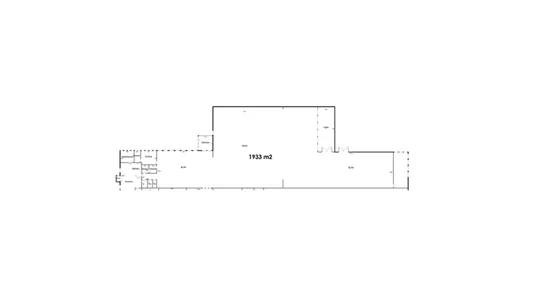
Butik, lager eller administration 1933 kvm - Lejemål 1
Mulighederne er mange da der både findes koldlager, isoleret lager, kontor muligheder eller måske administration med tilhørende lager for håndværkeren.
Der er mulighed for at leje helt op til 3.000 kvm.
Lejemål 1
Butik, lager eller administration.
Tidligere STARK byggemarked butik.
Areal 1933 m2
Lager, butik og administration – sammenhængende
Tilkørsel til lager rundt om bygningen via port
Butik og administration med separat indgang.
Se mere på
Kontakt os endelig for yderlige information og fremvisning.
Information og data
Dette lagerlejemål, ligger i Bjerringbro. Bjerringbro har postnummeret 8850, og ligger i kommunen Viborg, som ligger i Region Midtjylland. Lokalet er i alt 1933 m2.
Lignende lokaler
-
1530 m2 showroom til leje i 8850 Bjerringbro
- 29.500 kr. per måned
- 231 kr/m2/år
-
260 m2 restaurant til leje i 8850 Bjerringbro
- 16.000 kr. per måned
- 738 kr/m2/år
-
125 m2 kontor til leje i 8850 Bjerringbro
- 8.325 kr. per måned
- 799 kr/m2/år
-
88 m2 butik til leje i 8850 Bjerringbro
- 5.000 kr. per måned
- 681 kr/m2/år
-
170 m2 butik til leje i 8850 Bjerringbro
- 6.500 kr. per måned
- 458 kr/m2/år
Ofte stillede spørgsmål
Statistik over udviklingen i ledige lagerlokaler til leje i Bjerringbro over den sidste måned
Herunder ser du udviklingen i udbuddet og udlejningen af ledige lagerlokaler til leje i Bjerringbro over den sidste måned. I den første kolonne ser du datoen. I den anden kolonne ser du det samlede antal lagerlokaler til leje i Bjerringbro på datoen. I den tredje kolonne ser du antallet af nye lagerlokaler i Bjerringbro der er udbudt til leje på datoen. I den fjerde kolonne ser du antallet af lagerlokaler i Bjerringbro der er udlejet på datoen. Se også samlet statistik over alle udbudte lagerlokaler i Bjerringbro over tid, samlet statistik over nye lagerlokaler i Bjerringbro over tid, samlet statistik over udlejede lagerlokaler i Bjerringbro over tid.
| Dato | Alle lagerlokaler til leje | Nye lagerlokaler til leje | Udlejede lagerlokaler |
|---|---|---|---|
| 5. november 2025 | 2 | 0 | 0 |
| 4. november 2025 | 2 | 0 | 0 |
| 3. november 2025 | 2 | 0 | 0 |
| 2. november 2025 | 2 | 0 | 0 |
| 1. november 2025 | 2 | 0 | 0 |
| 31. oktober 2025 | 2 | 0 | 0 |
| 30. oktober 2025 | 2 | 0 | 0 |
| 29. oktober 2025 | 2 | 0 | 0 |
| 28. oktober 2025 | 2 | 0 | 0 |
| 27. oktober 2025 | 2 | 0 | 0 |
| 26. oktober 2025 | 2 | 0 | 0 |
| 25. oktober 2025 | 2 | 0 | 0 |
| 24. oktober 2025 | 2 | 0 | 0 |
| 23. oktober 2025 | 2 | 0 | 0 |
| 22. oktober 2025 | 2 | 0 | 0 |
| 21. oktober 2025 | 2 | 0 | 0 |
| 20. oktober 2025 | 2 | 0 | 0 |
| 19. oktober 2025 | 2 | 0 | 0 |
| 18. oktober 2025 | 2 | 0 | 0 |
| 17. oktober 2025 | 2 | 0 | 0 |
| 16. oktober 2025 | 2 | 0 | 0 |
| 15. oktober 2025 | 2 | 0 | 0 |
| 14. oktober 2025 | 2 | 0 | 0 |
| 13. oktober 2025 | 2 | 0 | 0 |
| 12. oktober 2025 | 2 | 0 | 0 |
| 11. oktober 2025 | 2 | 0 | 0 |
| 10. oktober 2025 | 2 | 0 | 0 |
| 9. oktober 2025 | 2 | 0 | 0 |
| 8. oktober 2025 | 2 | 0 | 0 |
Statistik over udbuddet af lagerlokaler til leje i Bjerringbro
I nedenstående tabel ser du en række data om udbuddet af lagerlokaler til leje i Bjerringbro.Se også samlet statistik over alle udbudte lagerlokaler i Bjerringbro over tid, samlet statistik over nye lagerlokaler i Bjerringbro over tid, samlet statistik over udlejede lagerlokaler i Bjerringbro over tid
| Lagerlokaler | |
|---|---|
| Antal ledige lokaler | 0 |
| Antal nye lokaler siden i går | 0 |
| Antal udlejede lokaler siden i går | 0 |
| Ledige m2 i alt | 0 |
| Gennemsnitlig pris per m2 per år uden drift | 0 |
| Højeste m2-pris | 0 |
| Laveste m2-pris | 0 |