SENESTE LOKALER
Virksomhedslokaler.dk i dag:
Nye i dag 41
Opdaterede 24h 42
Notifikationer om nye lokaler 1.790
Seneste opdatering 2 t siden
Aktive annoncer 14.727
Foto leveres af Google Street View og kan være upræcist:
Fri kontakt

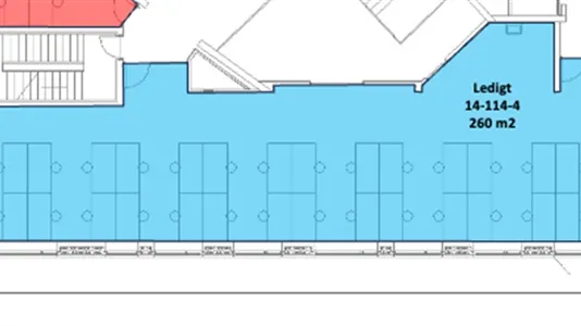
Kontor til leje, Vejle Centrum, Lysholt Allé 3 - 260m2, 344.500 kr.

  • 260 m2
  • 28.708 kr. per måned
Kontor til leje, Vejle Centrum, Lysholt Allé 3 - 260m2, 344.500 kr.
Få mere info om lokalet

⚡ Se alle oplysninger om lejemålet og få direkte adgang til udlejerens kontaktoplysninger.

Kontor til leje, Vejle Centrum, Lysholt Allé 3 - 260m2, 344.500 kr.

  • 260 m2
  • 28.708 kr. per måned
DANDY Business Park Ejendomme
Tina Pedersen
tlf: 21440430
Se email-adressexxxxxxxxxxxxxxxx
Link til udlejerxxxxxxxxxxxxxxxx

Læs om udlejer

Fakta

Rapportér fejl
  • 278458
  • Kontor
  • 260 m2
  • 344.500 kr.
  • 28.708 kr.
  • 467.285 kr.
  • 38.940 kr.
  • 1.325 kr.
  • 1.797 kr.

Stort, samlet kontorlokale i Food Innovation House

Plads til at vokse – uden at gå på kompromis

I Food Innovation House har vi nu et lyst og funktionelt kontor klar til en virksomhed, der har brug for lidt mere plads omkring sig.

Her får I:

Op 24-27 arbejdspladser i ét sammenhængende miljø
Masser af dagslys og ro til fordybelse
Eget the-køkken – så hverdagen glider lidt lettere
Fleksibel indretning, der kan tilpasses jeres måde at arbejde på
Her har du et lokale, der bare fungerer, og som kan indrettes på mange måder. Her kan teams sidde og arbejde sammen – og stadig have masser af plads.

Perfekt til scale-ups eller etablerede virksomheder, der er vokset ud af deres nuværende rammer.

Areal: 170 m² kontorplads + 90 m² fællesarealer.

Inkluderet i lejen:
Lejen dækker el, vand, varme og Wi-Fi i fællesområder. Bemærk dog, at internet, strøm og rengøring i selve lejemålet ikke er inkluderet.

Fordele ved at leje hos os:

Receptionistservice i åbningstiden
24/7 adgang til fitnessfaciliteter
Mulighed for attraktiv frokostordning
Unikke mødelokaler i hele DANDY Business Park
Effektiv viceværtsservice
Fællesskab og Netværk
Hos os bliver du en del af et åbent og inspirerende fællesskab. Vi deler viden, skaber relationer og inviterer til løbende arrangementer, der gør dig lidt klogere, lidt sundere – og sikrer, at der er plads til sjov i hverdagen.

Park Benefits
Som lejer får du adgang til vores eksklusive Park Benefits, der giver dine medarbejdere optimale arbejdsforhold. Mødelokaler, forplejning til gæster, frokostordning, fitnesscenter, tøjrens eller strøm til bilen og meget mere.

Økonomiske vilkår:
– Depositum: 6 måneders kontant husleje + 6 måneders depositum til driftsomkostninger
– Opsigelse: 12 måneders opsigelse til et kvartal efter endt bindingsperiode
– Huslejeregulering: NPI (dog minimum 2 %)
Alle priser er ekskl. moms.

Information og data

Dette kontorlejemål, ligger i Vejle Centrum. Vejle Centrum har postnummeret 7100, og ligger i kommunen Vejle, som ligger i Vejle. Lokalet er i alt 260 m2. Du kan leje dette kontorlokale for 344.500 kr. per år.

Lignende lokaler

1 mdr siden 288 m2 kontor til leje i 7100 Vejle, Lysholt Allé
288 m2
31.800 kr. per måned
Åbn
1 d siden 36 m2 kontor til leje i 7100 Vejle, Lysholt Allé
36 m2
3.975 kr. per måned
Åbn
1 mdr siden 344 m2 kontor til leje i 7100 Vejle, Lysholt Allé
344 m2
34.973 kr. per måned
Åbn
28 d siden 137 m2 kontor til leje i 7100 Vejle, Innovations Allé
137 m2
17.696 kr. per måned
Åbn
14 d siden 500 m2 kontor til leje i 7100 Vejle, Dandyvej
500 m2
60.417 kr. per måned
Åbn
1 mdr siden 17 m2 klinik til leje i 7100 Vejle, Havnegade
17 m2
4.138 kr. per måned
Åbn
1 mdr siden 119 m2 butik til leje i 7100 Vejle, Flegborg
119 m2
15.000 kr. per måned
Åbn
1 mdr siden 180 m2 butik til leje i 7100 Vejle, Torvegade
180 m2
42.000 kr. per måned
Åbn
1 mdr siden 121 m2 butik til leje i 7100 Vejle, Torvegade
121 m2
30.000 kr. per måned
Åbn

Ofte stillede spørgsmål

Statistik over udviklingen i ledige kontorlokaler til leje i Vejle Centrum over den sidste måned

Herunder ser du udviklingen i udbuddet og udlejningen af ledige kontorlokaler til leje i Vejle Centrum over den sidste måned. I den første kolonne ser du datoen. I den anden kolonne ser du det samlede antal kontorlokaler til leje i Vejle Centrum på datoen. I den tredje kolonne ser du antallet af nye kontorlokaler i Vejle Centrum der er udbudt til leje på datoen. I den fjerde kolonne ser du antallet af kontorlokaler i Vejle Centrum der er udlejet på datoen. Se også samlet statistik over alle udbudte kontorlokaler i Vejle Centrum over tid, samlet statistik over nye kontorlokaler i Vejle Centrum over tid, samlet statistik over udlejede kontorlokaler i Vejle Centrum over tid.

Dato Alle kontorlokaler til leje Nye kontorlokaler til leje Udlejede kontorlokaler
7. maj 2026 106 0 3
6. maj 2026 109 0 0
5. maj 2026 109 0 0
4. maj 2026 109 0 0
3. maj 2026 109 1 0
2. maj 2026 108 0 1
1. maj 2026 109 1 1
30. april 2026 109 0 0
29. april 2026 109 1 4
28. april 2026 112 0 1
27. april 2026 113 0 1
26. april 2026 114 0 0
25. april 2026 114 2 0
24. april 2026 112 1 4
23. april 2026 115 5 2
22. april 2026 112 3 0
21. april 2026 109 0 0
20. april 2026 109 1 0
19. april 2026 108 1 1
18. april 2026 108 3 0
17. april 2026 105 2 1
16. april 2026 104 0 1
15. april 2026 105 2 1
14. april 2026 104 2 5
13. april 2026 107 2 0
12. april 2026 105 0 0
11. april 2026 105 1 1
10. april 2026 105 1 0
9. april 2026 104 0 1
8. april 2026 105 2 4
7. april 2026 107 0 0

Statistik over udbuddet af kontorlokaler til leje i Vejle Centrum

I nedenstående tabel ser du en række data om udbuddet af kontorlokaler til leje i Vejle Centrum.Se også samlet statistik over alle udbudte kontorlokaler i Vejle Centrum over tid, samlet statistik over nye kontorlokaler i Vejle Centrum over tid, samlet statistik over udlejede kontorlokaler i Vejle Centrum over tid

Kontorlokaler
Antal ledige lokaler 109
Antal nye lokaler siden i går 0
Antal udlejede lokaler siden i går 3
Ledige m2 i alt 55.001
Gennemsnitlig pris per m2 per år uden drift 1.124
Højeste m2-pris 11.749
Laveste m2-pris 17