Kontor til leje, Tranbjerg J, Sletvej 2D
Sletvej 2D, 8310 - Tranbjerg J- Kontor til leje
- 44 m2
- Kontor til leje
- 44 m2
⚡ Se alle oplysninger om lejemålet og få direkte adgang til udlejerens kontaktoplysninger.
Kontor til leje, Tranbjerg J, Sletvej 2D
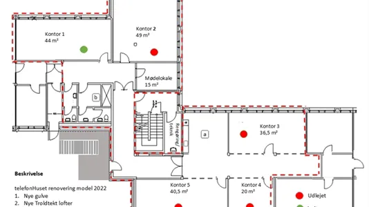
MÅNEDENS LEJEMÅL | 1. sal | Aarhus Syds største kontorfællesskab | Egen kantine | 250+ gratis P-pladser | 44 m²
44 m² | 1–7 personer | Nyrenoveret afdeling | 10.900 kr. ekskl. moms pr. md. (alt inkl.) 💰
Et sjældent udbudt kontor bliver ledigt i Centralen – en af vores mest eftertragtede afdelinger i telefonHuset, Aarhus Syds største kontorfællesskab 🌿
✨ Dit nye kontor
Kontoret ligger på 1. sal med dejlig udsigt til grønne arealer og masser af dagslys – som du kan dæmpe efter behov med elektroniske udvendige markiser 🌞
Regulært rum på 44 m² – let at indrette
Faste vægge mod fællesarealet for ro og privatliv
Nye Troldtekt-akustiklofter med app-styret LED-lys – vælg selv lysstyrke og farvetemperatur 💡
Dør i den ene ende for fleksibel indretning
Lige ved siden af finder du mødelokale, og på den anden side kopirum og toilet/bad – alt inden for få skridt.
👥 Fællesskab og faciliteter
I afdelingen Centralen bor fire andre spændende virksomheder fra forskellige brancher som deler:
☕ Et stort, lyst thekøkken
🧼 Fælles badefaciliteter
🗓️ Mødelokaler og kantineadgang via naboafdelingen Omstillingen 2
📞 “Telefonbokse” til korte møder og fortrolige samtaler
💼 Alt er inkluderet i huslejen – ingen skjulte udgifter:
● Fri adgang til alle fællesområder i telefonHuset
● Vedligehold og service af vores faste serviceteam 🔧
● Bemandet kantine med frokostordning 🍽️
● 4 mødelokaler frit tilgængelige, hvis de ikke er booket
● Mulighed for at booke konferencefaciliteter online inkl. forplejning
● Lynhurtigt internet – 500/500 Mbit via trådløst eller LAN
● Egen alarmopkobling og brikstyring i kontoret 🔐
● Netværksaktiviteter med ½-årskalender
● GLS pakkerum med rabataftale 📦
● Fri parkering (250+ pladser) i aflukket, videoovervåget område 🚗
●Store grønne udearealer og 3.000 m² biodiversitetscirkler 🌸🐝
📍Beliggenhed i topklasse:
🛣️ 6 min. til motorvej
🚙10 min. til Aarhus C
🚌Bus lige til døren
Naboer som Troldtekt, Rodenstock Briller, Maxi Zoo, SUEZ Water og mange flere såvel små som mellemstore virksomheder
📃 Lejevilkår
● Fast pris alt inklusive 💰
● 3 måneders depositum
● Fleksibel 3 måneders løbende opsigelse
Bliv en del af et dynamisk kontorfællesskab med professionel atmosfære, stærkt netværk og personlig service – i Aarhus Syds mest attraktive erhvervshus.
👉 Kontakt os i dag og oplev, hvorfor telefonHuset er det naturlige valg for dig og din virksomhed!
📩 Bestil et prospekt i dag direkte på www.telefonHuset.dk
Information og data
Dette kontorlejemål, som alternativt kan anvendes til Kontorfællesskab, ligger i Tranbjerg J. Tranbjerg J har postnummeret 8310, og ligger i kommunen Aarhus, som ligger i Århus. Lokalet er i alt 44 m2.
Lignende lokaler
-
Ca. 50 m2 værksted til leje i 8310 Tranbjerg J
- Ca. 3.000 kr. per måned
- Ca. 500 kr/m2/år
-
Ca. 8.055 m2 kontor til leje i 8310 Tranbjerg J
- Ca. 688.500 kr. per måned
- Ca. 1.000 kr/m2/år
-
Ca. 20 m2 kontor til leje i 8310 Tranbjerg J
- Ca. 6.000 kr. per måned
- Ca. 3.500 kr/m2/år
-
Ca. 350 m2 kontor til leje i 8310 Tranbjerg J
- Ca. 21.500 kr. per måned
- Ca. 500 kr/m2/år
-
Ca. 180 m2 lager til leje i 8310 Tranbjerg J
- Ca. 6.000 kr. per måned
- Ca. 500 kr/m2/år
-
Ca. 1.255 m2 butik til leje i 8310 Tranbjerg J
- Ca. 1.016.500 kr. per måned
- Ca. 9.500 kr/m2/år
-
Ca. 340 m2 butik til leje i 8310 Tranbjerg J
- Ca. 21.500 kr. per måned
- Ca. 1.000 kr/m2/år
Ofte stillede spørgsmål
Statistik over udviklingen i ledige kontorlokaler til leje i Tranbjerg J over den sidste måned
Herunder ser du udviklingen i udbuddet og udlejningen af ledige kontorlokaler til leje i Tranbjerg J over den sidste måned. I den første kolonne ser du datoen. I den anden kolonne ser du det samlede antal kontorlokaler til leje i Tranbjerg J på datoen. I den tredje kolonne ser du antallet af nye kontorlokaler i Tranbjerg J der er udbudt til leje på datoen. I den fjerde kolonne ser du antallet af kontorlokaler i Tranbjerg J der er udlejet på datoen. Se også samlet statistik over alle udbudte kontorlokaler i Tranbjerg J over tid, samlet statistik over nye kontorlokaler i Tranbjerg J over tid, samlet statistik over udlejede kontorlokaler i Tranbjerg J over tid.
| Dato | Alle kontorlokaler til leje | Nye kontorlokaler til leje | Udlejede kontorlokaler |
|---|---|---|---|
| 28. februar 2026 | 9 | 0 | 0 |
| 27. februar 2026 | 9 | 0 | 0 |
| 26. februar 2026 | 9 | 0 | 0 |
| 25. februar 2026 | 9 | 0 | 0 |
| 24. februar 2026 | 9 | 0 | 0 |
| 23. februar 2026 | 9 | 0 | 0 |
| 22. februar 2026 | 9 | 0 | 0 |
| 21. februar 2026 | 9 | 0 | 0 |
| 20. februar 2026 | 9 | 0 | 0 |
| 19. februar 2026 | 9 | 0 | 0 |
| 18. februar 2026 | 9 | 0 | 0 |
| 17. februar 2026 | 9 | 0 | 0 |
| 16. februar 2026 | 9 | 0 | 0 |
| 15. februar 2026 | 9 | 0 | 0 |
| 14. februar 2026 | 9 | 0 | 0 |
| 13. februar 2026 | 9 | 0 | 0 |
| 12. februar 2026 | 9 | 0 | 0 |
| 11. februar 2026 | 9 | 0 | 0 |
| 10. februar 2026 | 9 | 1 | 0 |
| 9. februar 2026 | 8 | 0 | 1 |
| 8. februar 2026 | 9 | 0 | 0 |
| 7. februar 2026 | 9 | 0 | 0 |
| 6. februar 2026 | 9 | 0 | 0 |
| 5. februar 2026 | 9 | 0 | 0 |
| 4. februar 2026 | 9 | 0 | 0 |
| 3. februar 2026 | 9 | 0 | 0 |
| 2. februar 2026 | 9 | 0 | 0 |
| 1. februar 2026 | 9 | 0 | 0 |
| 31. januar 2026 | 9 | 0 | 0 |
| 30. januar 2026 | 9 | 0 | 0 |
| 29. januar 2026 | 9 | 0 | 0 |
Statistik over udbuddet af kontorlokaler til leje i Tranbjerg J
I nedenstående tabel ser du en række data om udbuddet af kontorlokaler til leje i Tranbjerg J.Se også samlet statistik over alle udbudte kontorlokaler i Tranbjerg J over tid, samlet statistik over nye kontorlokaler i Tranbjerg J over tid, samlet statistik over udlejede kontorlokaler i Tranbjerg J over tid
| Kontorlokaler | |
|---|---|
| Antal ledige lokaler | 9 |
| Antal nye lokaler siden i går | 0 |
| Antal udlejede lokaler siden i går | 0 |
| Ledige m2 i alt | 8.600 |
| Gennemsnitlig pris per m2 per år uden drift | 1.903 |
| Højeste m2-pris | 3.720 |
| Laveste m2-pris | 400 |