SENESTE LOKALER
Virksomhedslokaler.dk i dag:
Nye i dag 3
Opdaterede 24h 3
Notifikationer om nye lokaler 460
Seneste opdatering 1 t siden
Aktive annoncer 14.873
Foto leveres af Google Street View og kan være upræcist:

Kontor til leje, Odense C, Torvegade - Ca. 365m2, Ca. 291.000 kr.

  • Ca. 365 m2
  • Ca. 24.500 kr. per måned

Kontor til leje, Odense C, Torvegade - Ca. 365m2, Ca. 291.000 kr.

  • Ca. 365 m2
  • Ca. 24.500 kr. per måned

Fakta

Rapportér fejl
  • 237603
  • Kontor
  • Ca. 365 m2
  • Ca. 291.000 kr.
  • Ca. 24.500 kr.
  • Ca. 1.000 kr.

Kontor til leje i 5000 Odense C

Kontorlejemål med central beliggenhed i Odense.

På 3. sal i markant ejendom lige ved H.C. Andersen museet og Odense Letbane udlejes veldisponeret kontorlejemål. Lejemålet er beliggende på 3. sal i samme ejendom som Arbejdernes Landsbank. Lejemålet entreres enten via trappe eller via elevator.

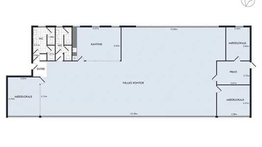
Lejemålet indeholder to mødelokaler, åbent kontormiljø med mulighed for yderligere opdeling, 4 toiletter samt spisekøkken og arkivrum. Fra lejemålet er der adgang til ugeneret tagterrasse med udsigt til Fisketorvet og Overgadekvarteret.

Lejemålet er apteret med lyddæmpende systemlofter, god grundbelysning, kabling, ventilationsanlæg, tæppefliser på gulvet.

Lejemålet kan overtages efter nærmere aftale.

Tak for din interesse i ejendommen


Sagsprospektet vil blive sendt til din mail, men du kan også se det med det samme på nedenstående link.

Tak for din henvendelse. Din besked vil blive behandlet hurtigst muligt.

Få besked om nye ejendomme før andre



Tak for din tilmelding


Vi har noteret dine ønsker.

Vi kontakter dig, så snart der er en ejendom, som matcher dine kriterier.

Få en uvildig vurdering af din erhvervsejendom



Tak for din henvendelse.

Vi kontakter dig snarest muligt for at aftale dato og tidspunkt for vurderingen.

Information og data

Dette kontorlejemål, ligger i Odense C. Odense C har postnummeret 5000, og ligger i kommunen Odense, som ligger i Odense. Lokalet er i alt Ca. 365 m2. Du kan leje dette kontorlokale for Ca. 291.000 kr. per år.

Lignende lokaler

1 mdr siden 10 - 1000 m2 kontor til leje i 5000 Odense C, Dannebrogsgade
10 - 1.000 m2
Ikke angivet
Åbn
1 mdr siden Kontorhotel til leje i 5000 Odense C, Dannebrogsgade
1 - 100 pladser
Ikke angivet
Åbn
1 mdr siden 407 m2 lager til leje i 5000 Odense C, Wichmandsgade
407 m2
8.771 kr. per måned
Åbn
1 mdr siden 17 m2 lager til leje i 5000 Odense C, Wichmandsgade
17 m2
708 kr. per måned
Åbn
1 mdr siden Ca. 125 m2 kontor til leje i 5000 Odense C
Ca. 125 m2
Ca. 10.000 kr. per måned
Åbn
1 mdr siden Ca. 70 m2 kontor til leje i 5000 Odense C
Ca. 70 m2
Ca. 6.000 kr. per måned
Åbn
1 mdr siden Ca. 125 m2 kontor til leje i 5000 Odense C
Ca. 125 m2
Ca. 10.000 kr. per måned
Åbn
1 mdr siden Ca. 100 m2 kontor til leje i 5000 Odense C
Ca. 100 m2
Ca. 9.000 kr. per måned
Åbn
1 mdr siden Kontorfællesskab til leje i 5000 Odense C
1 - 5 pladser
Ikke angivet
Åbn

Ofte stillede spørgsmål

Statistik over udviklingen i ledige kontorlokaler til leje i Odense C over den sidste måned

Herunder ser du udviklingen i udbuddet og udlejningen af ledige kontorlokaler til leje i Odense C over den sidste måned. I den første kolonne ser du datoen. I den anden kolonne ser du det samlede antal kontorlokaler til leje i Odense C på datoen. I den tredje kolonne ser du antallet af nye kontorlokaler i Odense C der er udbudt til leje på datoen. I den fjerde kolonne ser du antallet af kontorlokaler i Odense C der er udlejet på datoen. Se også samlet statistik over alle udbudte kontorlokaler i Odense C over tid, samlet statistik over nye kontorlokaler i Odense C over tid, samlet statistik over udlejede kontorlokaler i Odense C over tid.

Dato Alle kontorlokaler til leje Nye kontorlokaler til leje Udlejede kontorlokaler
2. maj 2026 264 3 8
1. maj 2026 269 5 11
30. april 2026 275 1 0
29. april 2026 274 0 0
28. april 2026 274 2 5
27. april 2026 277 1 0
26. april 2026 276 0 0
25. april 2026 276 0 0
24. april 2026 276 1 1
23. april 2026 276 0 1
22. april 2026 277 3 0
21. april 2026 274 1 1
20. april 2026 274 0 1
19. april 2026 275 0 0
18. april 2026 275 1 0
17. april 2026 274 0 1
16. april 2026 275 3 0
15. april 2026 272 3 4
14. april 2026 273 2 0
13. april 2026 271 0 0
12. april 2026 271 0 0
11. april 2026 271 0 0
10. april 2026 271 2 3
9. april 2026 272 14 0
8. april 2026 258 0 9
7. april 2026 267 0 7
6. april 2026 274 0 0
5. april 2026 274 2 0
4. april 2026 272 0 3
3. april 2026 275 1 0
2. april 2026 274 0 0

Statistik over udbuddet af kontorlokaler til leje i Odense C

I nedenstående tabel ser du en række data om udbuddet af kontorlokaler til leje i Odense C.Se også samlet statistik over alle udbudte kontorlokaler i Odense C over tid, samlet statistik over nye kontorlokaler i Odense C over tid, samlet statistik over udlejede kontorlokaler i Odense C over tid

Kontorlokaler
Antal ledige lokaler 272
Antal nye lokaler siden i går 3
Antal udlejede lokaler siden i går 8
Ledige m2 i alt 178.992
Gennemsnitlig pris per m2 per år uden drift 2.016
Højeste m2-pris 136.800
Laveste m2-pris 350