SENESTE LOKALER
Virksomhedslokaler.dk i dag:
Nye i dag 3
Opdaterede 24h 17
Notifikationer om nye lokaler 1.639
Seneste opdatering 17 min siden
Aktive annoncer 14.790
Foto leveres af Google Street View og kan være upræcist:
Fri kontakt

Kontor til leje, Kastrup, Bryggergården 11 - 459 - 1.955m2

  • 459 - 1.955 m2
Kontor til leje, Kastrup, Bryggergården 11 - 459 - 1.955m2
Få mere info om lokalet

⚡ Se alle oplysninger om lejemålet og få direkte adgang til udlejerens kontaktoplysninger.

Kontor til leje, Kastrup, Bryggergården 11 - 459 - 1.955m2

  • 459 - 1.955 m2
Byggeselskab Mogens de Linde
Lisa de Linde
tlf: 26 77 11 22
Se email-adressexxxxxxxxxxxxxxxx

PRO-UDLEJER

Læs mere

Læs om udlejer

Fakta

Rapportér fejl
  • 215320
  • Kontor
  • Butik
  • Showroom
  • 459 - 1.955 m2
  • 1.300 kr.

270 års industrihistorie i Kastrup på Bryggergården

Vi er stolte over at kunne præsentere "Magasinet" i Bryggergården til erhvervsudlejning. Denne charmerende ejendom er en af kronjuvelerne i dansk industrihistorie og er samtidig et af de få tilbageværende industrikomplekser. Med sig bærer ejendommen en 275 år lang og særlig historie. Bryggergården ligger ved Amager Strandvej ned til Øresund med en yderst central beliggenhed i området tæt på Kastrup lystbådhavn.

Området

Bryggergårdens centrale placering i det nye internationale udviklingsområde Scanport huser bl.a. Ferrings nye hovedkvarter tegnet af Norman Fosters tegnestue, Den Blå Planet og Scandic Hotel. Ligeledes tegnes området også af Københavns Lufthavn, der ligger 2 kilometer væk. Et område i vækst og med store visioner. Der er særdeles gode tilkørselsforhold fra indfaldsveje samt motorveje til og fra København fra både Malmø og motorring 3. Endvidere ligger Kastrup Metro station blot et stenkast væk ligesom Amager Strandvej byder på busforbindelser. Derudover kan man gå til Kastrup lufthavn på 10 min. P-pladser kan tillejes direkte ved lejemålet.

Ejendommen

Bryggergården er oprindeligt opført i 1747 af Jacob Fortling og er gennem årene blevet udbygget og ombygget adskillelige gange. Ejendommen og området, der også var kendt som Kastrup Værk, har tidligere været betydeligt større, men er nu reduceret til sine oprindelige bygninger, der er fredet.

Magasinet er del af det oprindelige Bryggergården fra 1747, og har med sin praktiske placering ud imod havnen, igennem tiden fungeret som kul- og kalkmagasin for læssene der blev sejlet ind fra Saltholm. Funktionen som magasin ses i højden til loftet og dybden i bygningen.

Bygningerne gennemgår en grundig renovering for dels at skralle ind til originale håndværksmæssige detaljer og samtidig at bringe komforten op til nutidig standard. Dette foregår gennem tæt dialog med Fredningsmyndigheder og Tårnby Kommune.

Bygningens tag er belagt med dansk tegl, og i forbindelse med renoveringen renoveres alle ejendommens vinduer, der tilføjes et atelievindue i 2.-3.salen og hvor tilladt ovenlysvinduer. Langs facader ses en række døre og træporte i stueetage, disse renoveres tilbage til sin originale stand. Imod kysten forlænges den udvendige trappe, så den både servicerer alle etager.

Lejemålet

Magasinet gennemgår en totalrenovering, og mangler ny(e) lejer(e), der delvist kan være med til at vælge den endelige indretning. Ejendommen er indrettet med en åben disponering og fremhævning af de smukke originale håndværksmæssige detaljer. Anvendelsesmulighederne er utallige, og ejendommen kan huse f.eks. kreative værksteder, restaurant, wellness, showroom og kontor.

Bryggergårdens historie ses tydeligt i bl.a. træsøjler og spær, fritlagte ydermure bestående af alt fra kampesten, potteskår og tegl.

I stueetagen er der adskillige udgange til gården og havneområdet, der etableres et moderne råt betongulv med gulvvarme, nye køkken- og toiletfaciliteter, samt trappe til de øvre etager. 1.-3. etage har enestående udsigt til Øresund, stort atelier-vindue mod nord, Dinesen plankegulve og ligeledes nye køkken- og toiletfaciliteter. Vi benytter akustikpuds hvor aktuelt for bedre lyd. Evt. mødelokaler laver vi normalt med rustikke smedejernsvinduer.

Der findes gårdhave til erhvervslejemålene.

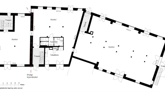
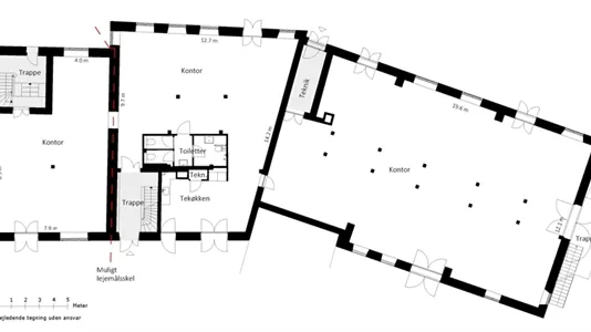
Magasinets opdeling i lejemål

Magasinet kan opdeles i lejemål fra 459 m² til 1.955 m².

Bygningen kan lejes som ét samlet domicil på 1.955 m², fordelt på stueetage, 1., 2. og 3. sal.

Alternativt kan bygningen opdeles i op til tre separate lejemål, under hensyntagen til gældende brandkrav og adgangsforhold.

Stueetagens 579 m² kan lejes samlet eller den østlige del på 459 m² kan lejes separat.

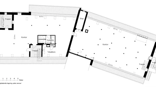
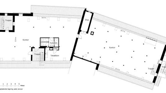
1. sal har et areal på 588 m² . Den kan ikke opdeles, men kan sammenlægges med stueetagens vestlige del på 120 m², hvilket giver et samlet areal på 708 m².

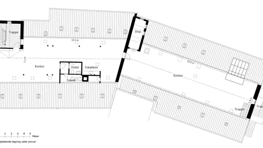
2. og 3. sal har et samlet areal på 788 m² og udlejes samlet. Disse etager kan eventuelt sammenlægges med øvrige etager i bygningen.

Det historiske bygningsværk ”Bryggergården” er en særegen perle lige midt i det spændende udviklingsområde ved Den Blå Planet og udviklingsområdet Scanport.

Bryggergården har en 270 år lang historie. I 1747 fik den tyske håndværker, hofstenhugger og senere hofbygmester, Jacob Fortling, kongeligt privilegium på at bryde kalk på Saltholm. Han valgte i første omgang at få kalken bragt ind til kalkbrænderiet på Christianshavn. Men i 1749 fik han ret til at anlægge et kalkbrænderi og en havn ved Kastrup Knæ. Det blev i 1752 udvidet med et teglværk og i 1755 med en stengods- og fajancefabrik. Samlet kaldes disse virksomheder Kastrup Værk.

Det oprindelige fabrikskompleks, en ca. 125 meter lang bygning med to portbygninger og gårdanlæg benyttes hovedsagelig til beboelse, mens en del andre bygninger mod syd er forsvundet og andre bygget til i 1800-tallet. I dag er det kun de oprindelige bygninger der står tilbage, og disse er tilmed blevet fredet i 1924. Vores interesse i området og bygningerne, stemmer overens med vores forkærlighed for at bevare den danske kulturarv. Bryggergården tilbyder unikke lejemål, efter endt istandsættelse, hvilket kendetegner de fleste af Byggeselskab Mogens de Lindes projekter.

Kongelejligheden

“Kongelejligheden” på Bryggergården brugte Christian VII i forbindelse med jagt på Amager. Historierne fortæller at lejligheden var tilflugtssted for Struense og Caroline Mathildes affære.

Bryggergården vil blive restaureret med respekt for dens oprindelige optegnelser til både beboelse og erhverv i samarbejde med ELGAARD Architecture, ØLLGAARD Rådgivende Ingeniører A/S og Center for Bygningsbevaring. Med sine 5000 m2, kan bygningernes anvendelse blive til kreative værksteder, restauration, wellness, showroom, hotel og konference samt øvrigt erhverv og kontor.

Information og data

Dette kontorlejemål, som alternativt kan anvendes til Butik eller Showroom, ligger i Kastrup. Kastrup har postnummeret 2770, og ligger i kommunen Tårnby, som ligger i København. Lokalet er i alt 1.955 m2.

Lignende lokaler

1 mdr siden 1.800 m2 kontor til leje i 2770 Kastrup, Kirstinehøj
1.800 m2
93.750 kr. per måned
Åbn
22 d siden 56 m2 lager til leje i 2770 Kastrup, Præstefælledvej
56 m2
2.700 kr. per måned
Åbn
1 mdr siden 8.849 m2 lager til leje i 2770 Kastrup, Oliefabriksvej
8.849 m2
634.097 kr. per måned
Åbn
1 mdr siden 600 - 1200 m2 kontor til leje i 2770 Kastrup
600 - 1.200 m2
Ca. 120.000 kr. per måned
Åbn
1 mdr siden Ca. 65 m2 kontor til leje i 2770 Kastrup
Ca. 65 m2
Ikke angivet
Åbn
26 d siden Ca. 100 m2 kontor til leje i 2770 Kastrup
Ca. 100 m2
Ca. 10.000 kr. per måned
Åbn
1 mdr siden Ca. 490 m2 lager til leje i 2770 Kastrup
Ca. 490 m2
Ikke angivet
Åbn
26 d siden 25 - 175 m2 lager til leje i 2770 Kastrup
25 - 175 m2
Ikke angivet
Åbn
1 mdr siden Ca. 900 m2 lager til leje i 2770 Kastrup, Kirstinehøj
Ca. 900 m2
Ca. 49.000 kr. per måned
Åbn

Ofte stillede spørgsmål

Statistik over udviklingen i ledige kontorlokaler til leje i Kastrup over den sidste måned

Herunder ser du udviklingen i udbuddet og udlejningen af ledige kontorlokaler til leje i Kastrup over den sidste måned. I den første kolonne ser du datoen. I den anden kolonne ser du det samlede antal kontorlokaler til leje i Kastrup på datoen. I den tredje kolonne ser du antallet af nye kontorlokaler i Kastrup der er udbudt til leje på datoen. I den fjerde kolonne ser du antallet af kontorlokaler i Kastrup der er udlejet på datoen. Se også samlet statistik over alle udbudte kontorlokaler i Kastrup over tid, samlet statistik over nye kontorlokaler i Kastrup over tid, samlet statistik over udlejede kontorlokaler i Kastrup over tid.

Dato Alle kontorlokaler til leje Nye kontorlokaler til leje Udlejede kontorlokaler
8. maj 2026 61 0 0
7. maj 2026 61 0 0
6. maj 2026 61 3 0
5. maj 2026 58 0 4
4. maj 2026 62 0 0
3. maj 2026 62 0 0
2. maj 2026 62 0 0
1. maj 2026 62 1 0
30. april 2026 61 0 0
29. april 2026 61 0 0
28. april 2026 61 0 0
27. april 2026 61 0 1
26. april 2026 62 0 0
25. april 2026 62 0 0
24. april 2026 62 0 0
23. april 2026 62 0 0
22. april 2026 62 0 0
21. april 2026 62 0 0
20. april 2026 62 0 0
19. april 2026 62 0 0
18. april 2026 62 0 0
17. april 2026 62 7 7
16. april 2026 62 7 0
15. april 2026 55 1 1
14. april 2026 55 1 1
13. april 2026 55 0 0
12. april 2026 55 0 0
11. april 2026 55 0 0
10. april 2026 55 0 1
9. april 2026 56 0 0
8. april 2026 56 0 0

Statistik over udbuddet af kontorlokaler til leje i Kastrup

I nedenstående tabel ser du en række data om udbuddet af kontorlokaler til leje i Kastrup.Se også samlet statistik over alle udbudte kontorlokaler i Kastrup over tid, samlet statistik over nye kontorlokaler i Kastrup over tid, samlet statistik over udlejede kontorlokaler i Kastrup over tid

Kontorlokaler
Antal ledige lokaler 61
Antal nye lokaler siden i går 0
Antal udlejede lokaler siden i går 0
Ledige m2 i alt 32.742
Gennemsnitlig pris per m2 per år uden drift 4.561
Højeste m2-pris 16.200
Laveste m2-pris 596