SENESTE LOKALER
Virksomhedslokaler.dk i dag:
Nye i dag 15
Opdaterede 24h 183
Notifikationer om nye lokaler 814
Seneste opdatering 6 min siden
Aktive annoncer 14.813
Foto leveres af Google Street View og kan være upræcist:

Butik til leje, Kolding, Klostergade - Ca. 115m2, Ca. 128.000 kr.

  • Ca. 115 m2
  • Ca. 10.500 kr. per måned

Butik til leje, Kolding, Klostergade - Ca. 115m2, Ca. 128.000 kr.

  • Ca. 115 m2
  • Ca. 10.500 kr. per måned

Fakta

Rapportér fejl
  • 265194
  • Butik
  • Restaurant
  • Klinik
  • Ca. 115 m2
  • Ca. 128.000 kr.
  • Ca. 10.500 kr.
  • Ca. 1.000 kr.

Butik til leje i 6000 Kolding

Dette moderne og attraktive lejemål, er beliggende i hjertet af Kolding, og er en del af det seneste byforskønnelsesprojekt i Kolding Bymidte.
Byforskønnelsesprojektet har været medvirkende til at styrke bymidtens identitet, med fokus på at integrere bydesign, arkitektur og bæredygtige løsninger.
I området har der ligeledes været fokus på at forbedre trafikflowet samt skabe mere plads til udeservicering.
De nye bymidterammer indbyder til byliv og et samlingspunkt for restauranter, specialforretninger, cafeér mv.

Lejemålet Klostergade 2, st. tv., Kolding byder, udover en meget attraktiv beliggenhed, også på nogle moderne og indbydende rammer, med eksempelvis store facadevinduer direkte ud mod Klostergade.
De mange og store facadevinduer gør lejemålet velegnet til udstilling af varer og sikrer dig en god synlighed.
Lejemålet har senest været anvendt som isbutik inklusiv eget produktionskøkken.
Lokalerne henvender sig derfor yderst godt til både en traditionel butik eller restaurant/café.

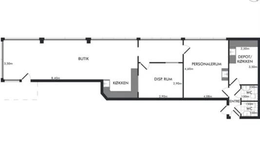
Lejemålet er indrettet med et stort regulært lokale med gode facadevinduer, baglokale/personalerum, køkken og toilet. Endvidere er der stort depot/lager i kælderen på 32 m².
Der er parkeringsmulighed i parkeringskælderen, Klostergaarden, som er beliggende i gåafstand til lejemålet.
Er du på udkig efter et flot og velbeliggende lejemål i et attraktivt område ved Kolding gågade, så er Klostergade 2, st. tv. et besøg værd.

Information og data

Dette butikslejemål, som alternativt kan anvendes til Restaurant eller Klinik, ligger i Kolding. Kolding har postnummeret 6000, og ligger i kommunen Kolding, som ligger i Region Sydjylland. Lokalet er i alt Ca. 115 m2. Du kan leje dette butikslokale for Ca. 128.000 kr. per år.

Lignende lokaler

1 mdr siden Kontorfællesskab til leje i 6000 Kolding, Banegårdspladsen
10 - 1.000 m2
Ikke angivet
Åbn
2 d siden Klinik til leje i 6000 Kolding, Olaf Ryes Gade
5.850 kr. per måned
Åbn
2 d siden Klinik til leje i 6000 Kolding
6.650 kr. per måned
Åbn
2 d siden Klinik til leje i 6000 Kolding
4.700 kr. per måned
Åbn
2 d siden 547 m2 butik til leje i 6000 Kolding, Vejlevej
547 m2
38.746 kr. per måned
Åbn
1 mdr siden 363 m2 kontor til leje i 6000 Kolding, Fynsvej
363 m2
19.506 kr. per måned
Åbn
2 d siden 54 m2 kontor til leje i 6000 Kolding, Olaf Ryes Gade
54 m2
4.600 kr. per måned
Åbn
2 d siden Kontorfællesskab til leje i 6000 Kolding
Ikke angivet
Åbn
2 d siden 268 m2 lager til leje i 6000 Kolding, Vejlevej
268 m2
12.955 kr. per måned
Åbn

Ofte stillede spørgsmål

Statistik over udviklingen i ledige butikslokaler til leje i Kolding over den sidste måned

Herunder ser du udviklingen i udbuddet og udlejningen af ledige butikslokaler til leje i Kolding over den sidste måned. I den første kolonne ser du datoen. I den anden kolonne ser du det samlede antal butikslokaler til leje i Kolding på datoen. I den tredje kolonne ser du antallet af nye butikslokaler i Kolding der er udbudt til leje på datoen. I den fjerde kolonne ser du antallet af butikslokaler i Kolding der er udlejet på datoen. Se også samlet statistik over alle udbudte butikslokaler i Kolding over tid, samlet statistik over nye butikslokaler i Kolding over tid, samlet statistik over udlejede butikslokaler i Kolding over tid.

Dato Alle butikslokaler til leje Nye butikslokaler til leje Udlejede butikslokaler
20. maj 2026 44 0 0
19. maj 2026 44 0 0
18. maj 2026 44 0 0
17. maj 2026 44 0 0
16. maj 2026 44 0 0
15. maj 2026 44 1 0
14. maj 2026 43 0 1
13. maj 2026 44 0 0
12. maj 2026 44 0 0
11. maj 2026 44 0 0
10. maj 2026 44 0 0
9. maj 2026 44 0 0
8. maj 2026 44 2 2
7. maj 2026 44 1 1
6. maj 2026 44 0 3
5. maj 2026 47 0 1
4. maj 2026 48 0 0
3. maj 2026 48 2 0
2. maj 2026 46 1 3
1. maj 2026 48 0 1
30. april 2026 49 0 0
29. april 2026 49 1 0
28. april 2026 48 0 1
27. april 2026 49 0 1
26. april 2026 50 0 0
25. april 2026 50 0 0
24. april 2026 50 0 2
23. april 2026 52 1 1
22. april 2026 52 1 0
21. april 2026 51 0 1
20. april 2026 52 0 0

Statistik over udbuddet af butikslokaler til leje i Kolding

I nedenstående tabel ser du en række data om udbuddet af butikslokaler til leje i Kolding.Se også samlet statistik over alle udbudte butikslokaler i Kolding over tid, samlet statistik over nye butikslokaler i Kolding over tid, samlet statistik over udlejede butikslokaler i Kolding over tid

Butikslokaler
Antal ledige lokaler 45
Antal nye lokaler siden i går 0
Antal udlejede lokaler siden i går 0
Ledige m2 i alt 19.554
Gennemsnitlig pris per m2 per år uden drift 1.538
Højeste m2-pris 21.810
Laveste m2-pris 400